

Christian Schulz Immobilien
Herr Christian Schulz
+49 ···
Nr. anzeigenPreise & Kosten
Provision für Käufer
2,38 % inkl. MwSt.
Lage
Der Stadtteil Pankow liegt im Norden von Berlin. Zu dem sonst oft hektischen Alltag in der Stadt bietet er eine entspannte Alternative.
Zahlreiche Restaurants und Cafés bieten sich in direkter Nachbarschaft für eine kulinarische Entdeckungstour an. Vor allem im Sommer laden die nahegelegenen Plätz wie der Arnimplatz oder...
Die Wohnung
Wohnungslage
4. Geschoss
Bezug
ab sofort
Derzeitige Nutzung
frei
Wohnanlage
Energie & Heizung
Warum sehe ich diese Anzeige? – Du siehst diese Anzeige basierend auf Ihrer Navigation auf unserer Website und den Suchkriterien, die du verwendet hast.
Energieausweistyp
Verbrauchsausweis
Gebäudetyp
Wohngebäude
Baujahr laut Energieausweis
1890
Wesentliche Energieträger
Fernheizung
Gültigkeit
15.06.2018 bis 15.06.2028
Effizienzklasse
D
Endenergieverbrauch
102,00 kWh/(m²·a)
Weitere Energiedaten
Energieträger
Fernwärme
Details
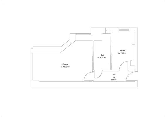
Objektbeschreibung
Diese kompakte 1-Zimmerwohnung befindet sich im 4. Obergeschoss und ist über den Innenhof erreichbar. Die Lage im Seitenflügel eines Altbaus aus dem Jahre 1890 sorgt für eine ruhe Wohnatmosphäre.
Mit einer Wohnfläche von ca. 35,38 m² ist die Eigentumswohnung perfekt für eine Person geeignet. Sie verfügt über einen...
Ausstattung
-Eigentumswohnung im 4.OG Seitenflügel
-Gepflegter Altbau aus 1890
-1 Zimmer mit ca. 35,38 m² Wohnfläche
-Großer Wohn-, Ess- & Schlafbereich auf ca. 18 m²
-Geräumige Küche mit Platz für eine Sitzecke
-Hell gefliestes Wannenbad mit Fenster
-Sofort bezugsfertig
-Sofort bezugsfertig
Anbieter der Immobilie
Christian Schulz Immobilien
Warägerweg 3, 13595 Berlin

Online-ID: 2mb4d5n
Referenznummer: Thule11 - WE22
Finde Angebote wie dieses
Hier geht es zu unserem Impressum, den Allgemeinen Geschäftsbedingungen, den Hinweisen zum Datenschutz und nutzungsbasierter Online-Werbung.