Doose Bau Verwaltungsgesellschaft mbH

Herr Ralf Adler

Neubau Luxus-Penthouse mit großer Dachterrasse in SPO! Courtagefrei!

auf Anfrage
Kaufpreis
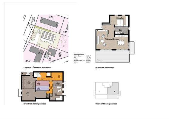
83,50 m²
Wohnfläche ca.
1
Zimmer

Der Anbieter dieses Objekts hat gegenüber der AVIV Germany GmbH als Betreiber dieses Online-Marktplatzes erklärt, nicht als Unternehmer im Sinne des § 1 KSchG zu handeln. Die im Verbraucherschutzrecht der Union verankerten Verbraucherrechte (insbesondere Informationspflichten und Rücktritts- bzw. Widerrufsrechte) finden auf den Vertrag zwischen dem Anbieter des Objekts und Ihnen (dem Interessenten) keine Anwendung.

Provisionsfrei
Gewerblicher Anbieter

Der Anbieter dieses Objekts hat gegenüber der AVIV Germany GmbH als Betreiber dieses Online-Marktplatzes erklärt, als Unternehmer im Sinne des § 1 KSchG zu handeln.

AdresseStraße nicht freigegeben
25826 Sankt Peter-Ording 
Auf Karte ansehen

Preise & Kosten

Kaufpreis auf Anfrage

Provision für Käufer

provisionsfrei

Lage

Das faszinierende Penthouse befindet sich in der idyllischen Küstenstadt Sankt Peter-Ording, einem der reizvollsten Orte an der deutschen Nordseeküste. Eingebettet in eine einzigartige Landschaft aus Dünen, Strand und Meer, bietet diese außergewöhnliche Lage eine perfekte Balance zwischen Ruhe und Lebendigkeit.

In...

Mehr anzeigen

Die Wohnung

Kategorie

Penthouse

Wohnungslage

3. Geschoss

  • Balkon, Terrasse
  • barrierefrei
  • Zustand: Erstbezug
  • Weitere Räume: Kelleranteil
  • Anschlüsse: Kabelanschluss

Wohnanlage

  • Baujahr: 2026
  • Personenaufzug
  • Wellness: Sauna

Energie & Heizung

A+
A
B
C
D
E
F
G
H
0 25 50 75 100 125 150 175 200 225 250 +

Energieausweistyp

Bedarfsausweis

Gebäudetyp

Wohngebäude

Baujahr laut Energieausweis

2025

Wesentliche Energieträger

LUFTWP

Gültigkeit

bis 02.07.2035

Effizienzklasse

A+

Endenergiebedarf

15,40 kWh/(m²·a)

Weitere Energiedaten

Energieträger

Solar

Heizungsart

Luft-/Wasser-Wärmepumpe

Details

Objektbeschreibung

Entdecken Sie dieses luxuriöse Penthouse in der begehrten Lage von Sankt Peter-Ording, ein exklusives Angebot für anspruchsvolle Käufer. Dieses beeindruckende Neubau-Erstbezug-Penthouse bietet eine Wohnfläche von ca. 83 m² und erstreckt sich über die dritte Etage eines modernen Wohnkomplexes, der 2026 fertiggestellt wird...

Mehr anzeigen

Ausstattung

Diese exquisite Immobilie bietet eine Vielzahl an Ausstattungsmerkmalen, die Komfort und Lebensqualität auf höchstem Niveau garantieren. Das barrierefreie Design sorgt für uneingeschränkte Zugänglichkeit und erleichtert den Alltag für jedermann. Entspannen Sie auf der großzügigen Terrasse oder dem einladenden Balkon und...

Mehr anzeigen

Weitere Informationen

Sonstiges
Herzlich Willkommen zu unserem exklusiven Immobilienangebot! Wir freuen uns, Ihnen eine hochmoderne Immobilie vorstellen zu können, die höchsten energetischen Standards entspricht. Diese Immobilie wird im Jahr 2026 erbaut und überzeugt durch einen hervorragenden energetischen Wert, wie der vorliegende...

Mehr anzeigen

Anbieter der Immobilie

Partner

Doose Bau Verwaltungsgesellschaft mbH

Bahnhofstraße 16, 25729 Windbergen

user

Herr Ralf Adler

Dein Ansprechpartner

Anbieter-Profil Anbieter-Impressum

Online-ID: 2mb4x5d

Referenznummer: 8

Finde Angebote wie dieses

imageimageimage

Hier geht es zu unserem Impressum, den Allgemeinen Geschäftsbedingungen, den Hinweisen zum Datenschutz und nutzungsbasierter Online-Werbung.