
Markhofer Immobilien GmbH
Frau Nadine Markhofer
+49 ···
Nr. anzeigenPreise & Kosten
Provision für Käufer
3,57 inkl. MwSt.
Lage
Die Immobilie liegt in einem der begehrten Wohnbereiche von Frankenholz, bekannt für seine angenehme Höhenlage, die naturnahe Umgebung und die absolute Ruhe. Hier wohnt man abseits des Alltags - und dennoch nah genug, um Einkaufsmöglichkeiten, Schulen, Arztpraxen und Verkehrsanbindungen schnell zu erreichen.
Die...
Das Haus
Kategorie
Stadthaus
Baujahr
1962
Bezug
01.02.2026
Energie & Heizung
Warum sehe ich diese Anzeige? – Du siehst diese Anzeige basierend auf Ihrer Navigation auf unserer Website und den Suchkriterien, die du verwendet hast.
Weitere Energiedaten
Energieträger
Elektro
Details
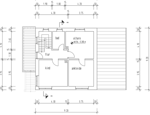
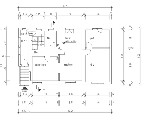
Objektbeschreibung
Diese Vorstadtvilla steht auf einem sonnigen, großzügigen Grundstück in begehrter Höhenlage von Frankenholz - ein Ort, an dem Ruhe, Weitblick und gehobenes Wohngefühl aufeinandertreffen. Das Anwesen wurde vollständig kernsaniert und präsentiert sich heute als harmonische Verbindung aus zeitloser Eleganz und modernster Technik...
Ausstattung
Ausstattung & Highlights:
* Vollständig kernsaniertes Anwesen
* Energieeffizienzklasse A, modernste Haustechnik
* Eindrucksvolles Grundstück in bevorzugter Höhenlage - mit Privatsphäre und herrlichem Ausblick
* Großzügige Wohnflächen auf 3 Etagen, ideal für Familien, Homeoffice oder repräsentatives...
Weitere Informationen
Sonstiges
Maklerprovision
Der Auftraggeber, sowie der Verkäufer verpflichtet sich, an den Makler eine Provision in Höhe von 3,57 % (einschließlich der geltenden gesetzliche Umsatzsteuer) des Gesamtkaufpreises zu bezahlen.
Die Provision errechnet sich aus dem Kaufpreis zzgl. etwaiger weiterer geldwerter Leistungen...
Anbieter der Immobilie
Online-ID: 2mb4y5q
Referenznummer: 128878808#UgfOh
Finde Angebote wie dieses
Hier geht es zu unserem Impressum, den Allgemeinen Geschäftsbedingungen, den Hinweisen zum Datenschutz und nutzungsbasierter Online-Werbung.