Bungalow zum Kauf1050000 €1.050.000 €8.268 €/m²
3 Zimmer • 127 m² • 719 m² Grundstück
Edler Bungalow mit Keller + Garage in Top Lage!
Zum Verkauf gelangt dieser edle Bungalow mit Garten in 2380 Perchtoldsdorf, Tirolerhofalle 25.
Die Immobilie befindet sich in absoluter Ruhelage einer Wohnsiedlung + wäre sofort beziehbar.
Die Beheizung erfolgt über eine neue Gaszentralheizung - Marke Buderus.
Das Gebäude wurde wie folgt neu saniert:
- neue Kunststoff / Alu Fenster 3 Fach - Verglasung Marke Rekord
- neue Elektrik + neue Steckdosen + neue Schalter
- zwei neue Badezimmer + neue WC
- neue Gasbrennwertgerät Heizung Fußbodenheizung + Radiatoren
- neue Einbauküche mit Bosch - Geräten
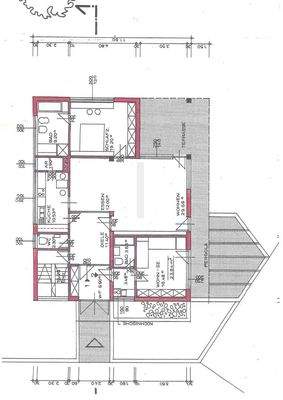
Die Immobilie teilt sich wie folgt auf
Außenbereich
- schöner angelegter Garten
- Terrasse mit Grillkamin
- Garage für ein Fahrzeug - diese befindet sich in der Nähe der Immobilie
- Bungalow Fläche 127m2
- Eingangsbereich + Diele 18m2 + WC 2,30m2
- Neue Einbauküche 10,53m2 + Speis 1,90m2
- Schlafzimmer 19,20m2
- Neues Badezimmer mit Dusche + Wanne 9,20m2
- Giebelhohes Wohnzimmer mit Essbereich 42m2
- Vorraum 3,48m2
- Wohn / Schlafzimmer 23,64m2
- Neues Badezimmer mit Dusche 3,68m2
- Keller Fläche 127m2
- Vorraum + WC
- Lagerraum + Nebenraum
- Technikraum / neue Gaszentralheizung
- Kellerstüberl
- Großer Kellerraum
- Saunabereich
Vereinbaren Sie Ihre persönliche Besichtigung.
Ihre Immobilienträume.
Unser Ziel!
www.realbrokers.at
Infrastruktur / Entfernungen
Gesundheit
Arzt <900m
Klinik <2.850m
Apotheke <675m
Krankenhaus <1.650m
Kinder & Schulen
Schule <400m
Kindergarten <975m
Höhere Schule <4.825m
Universität <9.150m
Nahversorgung
Supermarkt <575m
Bäckerei <850m
Einkaufszentrum <4.175m
Sonstige
Bank <950m
Geldautomat <950m
Post <950m
Polizei <1.875m
Verkehr
Bus <350m
U-Bahn <5.625m
Straßenbahn <3.500m
Bahnhof <3.225m
Autobahnanschluss <575m
Angaben Entfernung Luftlinie / Quelle: OpenStreetMap
Merkmale
Bausubstanz und Energie
Gesamtenergieeffizienz (fGEE)
Der Anbieter hat keine Daten zum Energieausweis hinterlegt.
Zustand der ImmobilieNeubau, Gepflegt
HeizungsartZentralheizung: Fußbodenheizung
Preisdetails
1050000 €1.050.000 €8.267,72 €/m²
3% des Kaufpreises zzgl. 20% USt.
Weitere Preisinformationen
1 Garagenstellplatz
Lage

Tirolerhofallee 25, Perchtoldsdorf (2380)
Weitere Informationen
Stichworte
Garage vorhanden, Süd-West-Balkon/Terrasse, Anzahl der Badezimmer: 2, Anzahl der separaten WCs: 4, Anzahl Terrassen: 1, Balkon-Terrassen-Fläche: 50,00 m², Kellerfläche: 127,00 m², Bundesland: Niederösterreich, modernisiert: 2025
Lust auf eine Besichtigung?
Eine Frage zur Immobilie?
Über den Anbieter
Braitnerstraße 41 Büro 1A, 2500 BADEN
Herr Harald EbnerDein Kontakt
Online-ID: 259RB9VJAELP
Referenznummer: OBGC202512010842562682892e1eab4
Wie zufrieden bist du mit dieser Seite (nicht mit der Immobilie selbst)?