

RE/MAX Immobilien-Zentrale Königstein
Herr Bernd Pastowski
+49 ···
Nr. anzeigenPreise & Kosten
Provision für Käufer
3,57% des Kaufpreis inkl. MwSt. inkl. MwSt.
Lage
Die Immobilie liegt in einer gut angebundenen Gegend, die sich ideal für Investitionen eignet. Der öffentliche Nahverkehr ist in wenigen Gehminuten erreichbar, mit der nächsten Bushaltestelle nur ca. 70 Meter entfernt und dem Bahnhof Königstein ca. 650 Meter entfernt. Dies ermöglicht eine schnelle Verbindung in die...
Die Ladenfläche
Kategorie
Laden
Baujahr
1981
Bezug
sofort
Erdgeschoss
Energie & Heizung
Warum sehe ich diese Anzeige? – Du siehst diese Anzeige basierend auf Ihrer Navigation auf unserer Website und den Suchkriterien, die du verwendet hast.
Wärme
Energieausweistyp
Verbrauchsausweis
Gebäudetyp
Nicht-Wohngebäude
Baujahr laut Energieausweis
1981
Wesentliche Energieträger
GAS
Gültigkeit
bis 20.11.2026
Endenergieverbrauch (Wärme)
116,70 kWh/(m²·a)
Details
Objektbeschreibung
Sie suchen ein Ladenlokal/Büro oder eine Praxis in City Lage mit exzellenter Sichtbarkeit?
Dann kann Ihre Suche mit dieser Immobilie ein Ende gefunden haben.
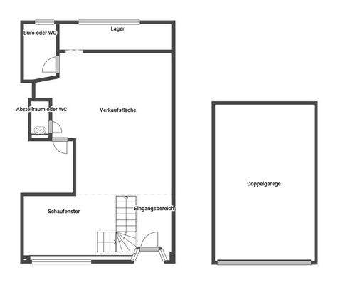
Im EG bietet die Verkaufsfläche ca. 75 m² und im UG können Sie weitere Flächen nutzen, da von der Verkaufsfläche eine Anbindung per Treppe vorhanden ist...
Ausstattung
- Sehr gute Lage in Königstein Mitte
- Insgesamt rund 150 m² Flächen auf 2 Ebenen, EG u. UG
- Schaufensterfront zur Straße, ca. 75 m² Verkaufsfläche im EG
- Im UG befand sich eine Werkstatt
- Außentreppe zum Hof/der Garage
- WC oder Teeküche könnten auf beiden Ebenen installiert werden
- Raumgestaltung...
Preisinformation
Nettokaltmiete: 1.800,00 EUR
Weitere Informationen
Sonstiges
Achtung! Für die Bearbeitung benötigen wir Ihre vollständigen Kontaktdaten. Gerne führen wir gemeinsam mit Ihnen eine Besichtigung durch und stehen Ihnen mit weiteren Informationen jederzeit zur Verfügung. Für die in diesem Exposé gemachten Angaben können wir leider keine Haftung übernehmen, da sie auf den...
Anbieter der Immobilie

Online-ID: 2mb7u5c
Referenznummer: 1023-478-BP
Finde Angebote wie dieses
Hier geht es zu unserem Impressum, den Allgemeinen Geschäftsbedingungen, den Hinweisen zum Datenschutz und nutzungsbasierter Online-Werbung.