Adonia Relaitätenvermittlung GmbH

Herr Adonia Immobilien

++MOLLARD 50++ Exclusive 3-room apartment right in the heart of the city (3/3)

€ 1.974,94
Gesamtmiete
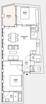
71,13 m²
Wohnfläche ca.
3
Zimmer

Der Anbieter dieses Objekts hat gegenüber der AVIV Germany GmbH als Betreiber dieses Online-Marktplatzes erklärt, nicht als Unternehmer im Sinne des § 1 KSchG zu handeln. Die im Verbraucherschutzrecht der Union verankerten Verbraucherrechte (insbesondere Informationspflichten und Rücktritts- bzw. Widerrufsrechte) finden auf den Vertrag zwischen dem Anbieter des Objekts und Ihnen (dem Interessenten) keine Anwendung.

Gewerblicher Anbieter

Der Anbieter dieses Objekts hat gegenüber der AVIV Germany GmbH als Betreiber dieses Online-Marktplatzes erklärt, als Unternehmer im Sinne des § 1 KSchG zu handeln.

AdresseStraße nicht freigegeben
1060 Wien 
(Mariahilf)
Auf Karte ansehen

Preise & Kosten

Gesamtmiete € 1.974,94 Nettokaltmiete

zzgl. Betriebskosten

€ 1.795,40

Kaution

3 Bruttomonatsmieten

Provision für Mieter

Gemäß Erstauftraggeberprinzip bezahlt der Abgeber die Provision.

Lage

Mollardgasse

Die Wohnung

Wohnungslage

1. Geschoss

Bezug

sofort

  • Bad mit Wanne und Dusche
  • Balkon
  • Einbauküche
  • barrierefrei, rollstuhlgerecht, WG-geeignet
  • Böden: Estrich, Fliesenboden, Parkett
  • Zustand: Erstbezug
  • Weitere Räume: Abstellraum

Wohnanlage

  • Baujahr: 2025
  • Zustand: Neubau
  • Personenaufzug

Energie & Heizung

Heizwärmebedarf (HWB)

29,70 kWh/(m²·a)

Gesamtenergieeffizienz (fGEE)

0,74

Weitere Energiedaten

Heizungsart

Fußbodenheizung, Zentralheizung

Details

Objektbeschreibung

WELCOME TO THE NEW DEVELOPMENT PROJECT MOLLARDGASSE 50!
PRIME LOCATION IN VIENNA'S 6TH DISTRICT, MARIAHILF - COMPLETION COMING SOON!

++ Please note that you should not inquire about this project through another company. Through us, you can view all available apartments in this building. ++

Available for...

Mehr anzeigen

Preisinformation

Nettokaltmiete: 1.795,40 EUR

Weitere Informationen

Stichworte
Garage vorhanden, West-Balkon/Terrasse, Anzahl der Badezimmer: 2, Anzahl der separaten WCs: 1, Anzahl Balkone: 1, Balkon-Terrassen-Fläche: 7,40 m², Bundesland: Wien, Wohnungsnr.: 3

Anbieter der Immobilie

Partner

Adonia Relaitätenvermittlung GmbH

im Durchschnitt  1,20  Sterne
(bei 1 Bewertungen)

Hohenstaufengasse 9/2, 1010 WIEN

user

Herr Adonia Immobilien

Dein Ansprechpartner

Anbieter-Website Anbieter-Profil Anbieter-Impressum

Online-ID: 2mb845t

Referenznummer: OBGC202512221206519539c0d69f038

Finde Angebote wie dieses

imageimageimage

Hier geht es zu unserem Impressum, den Allgemeinen Geschäftsbedingungen, den Hinweisen zum Datenschutz und nutzungsbasierter Online-Werbung.