

Zieglmeier Immobilien OHG
Herr Johannes Ringshandl
+49 ···
Nr. anzeigenPreise & Kosten
Provision für Käufer
3,57% inkl. MwSt. inkl. MwSt.
Nach Abschluss eines rechtswirksamen Kaufvertrages ist der Käufer verpflichtet eine Provision in Höhe von 3,57 % inkl. MwSt. vom notariellen Kaufpreis an den Makler zu bezahlen.
Lage
Die Immobilie befindet sich in ruhiger, gewachsener Wohnlage in Neuburg an der Donau. Das direkte Umfeld ist geprägt von Ein- und Zweifamilienhäusern und bietet eine angenehme, familienfreundliche Nachbarschaft. Einkaufsmöglichkeiten, Schulen, Kindergärten und ärztliche Versorgungseinrichtungen sind in kurzer Entfernung...
Das Haus
Kategorie
Doppelhaushälfte
Baujahr
1983
Bezug
ab sofort
Energie & Heizung
Warum sehe ich diese Anzeige? – Du siehst diese Anzeige basierend auf Ihrer Navigation auf unserer Website und den Suchkriterien, die du verwendet hast.
Energieausweistyp
Verbrauchsausweis
Gebäudetyp
Wohngebäude
Baujahr laut Energieausweis
1983
Wesentliche Energieträger
ERDGAS_LEICHT
Gültigkeit
bis 18.12.2035
Effizienzklasse
E
Endenergieverbrauch
134,22 kWh/(m²·a)
Weitere Energiedaten
Haustyp
Massivhaus
Energieträger
Gas
Heizungsart
offener Kamin, Zentralheizung
Details
Objektbeschreibung
Diese gepflegte Doppelhaushälfte aus dem Jahr 1983 überzeugt mit einem durchdachten Grundriss, solider Bauweise und einer Vielzahl an Nutzungsmöglichkeiten - ideal für Familien, Paare mit Platzbedarf oder Selbstnutzer mit dem Wunsch nach einer zusätzlichen Einliegerwohnung.
Das Haus wurde in massiver Bauweise und...
Ausstattung
- Massiv gebaute Doppelhaushälfte in ruhiger Wohnlage
- Ab sofort bezugsfrei - ideal für Eigennutzer
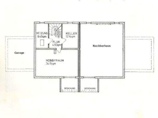
- Großzügiger Hobbyraum im Untergeschoss mit ca. 34 m² und viel Tageslicht durch angeschrägte Böschung vor dem Fenster (der Raum ist nicht in der angegebenen Wohnfläche enthalten)
- Zum Ausbau...
Weitere Informationen
Stichworte
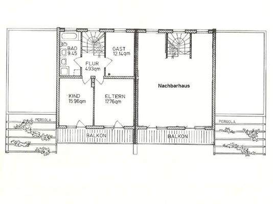
Anzahl der Schlafzimmer: 3, Anzahl der Badezimmer: 1, Anzahl der separaten WCs: 1, Anzahl Balkone: 2, Anzahl Terrassen: 1
Sonstiges/Wohnen: Einliegerwohnung
Anbieter der Immobilie

Online-ID: 2mb9j5s
Referenznummer: vkp1713
Finde Angebote wie dieses
Hier geht es zu unserem Impressum, den Allgemeinen Geschäftsbedingungen, den Hinweisen zum Datenschutz und nutzungsbasierter Online-Werbung.