
Crozilla.com
Dogma nekretnine
+38 ···
Nr. anzeigenPreise & Kosten
Provision für Käufer
Bitte beachte, das Angebot kann bei Vertragsabschluss die Zahlung einer Provision beinhalten. Weitere Informationen erhältst Du vom Anbieter.
Die Wohnung
Wohnungslage
3. Geschoss
Wohnanlage
Details
Objektbeschreibung
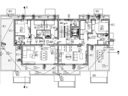
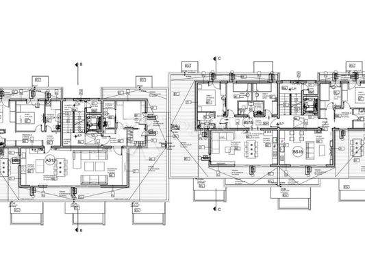
Penthouse in einem neuen Wohnkomplex (B-S16) Dugopolje
Die Wohnung besteht aus: Eingangsbereich, Küche, Esszimmer und Wohnzimmer mit Zugang zu einer großzügigen Terrasse, zwei Schlafzimmern mit Zugang zur Terrasse sowie einem Badezimmer (Grundriss im Inserat beigefügt). Die berechnete Wohnfläche beträgt 79,11...
Weitere Informationen
Stichworte
Anzahl der Schlafzimmer: 2, Anzahl der Badezimmer: 1, 1 Etagen
Anbieter der Immobilie
Crozilla.com
Nova cesta 60, 10000 ZAGREB
Online-ID: 2mbad5l
Referenznummer: 18659802_1
Finde Angebote wie dieses
Hier geht es zu unserem Impressum, den Allgemeinen Geschäftsbedingungen, den Hinweisen zum Datenschutz und nutzungsbasierter Online-Werbung.