
Sommer Immobilien
Frau Silke Sommer
036 ···
Nr. anzeigenPreise & Kosten
Provision für Käufer
3,57 % inkl. MwSt.
Lage
1B-Lage
Vorteilhaft ist die sehr zentrale Lage in der Nähe der Fußgängerzone als auch die Zugangsmöglichkeit von zwei Seiten, wovon der Hintereingang barrierefrei zu erreichen ist. Alle Einkaufsmöglichkeiten, Ärzte, Dienstleister, Schulen, Kindergärten und Theater sind im unmittelbaren Umfeld zu erreichen.
Büro-/Praxisfläche
Kategorie
Bürofläche
Baujahr
1996
Bezug
01.04.2026
Derzeitige Nutzung
vermietet
Geschoss
1. Geschoss
Energie & Heizung
Warum sehe ich diese Anzeige? – Du siehst diese Anzeige basierend auf Ihrer Navigation auf unserer Website und den Suchkriterien, die du verwendet hast.
Wärme
Energieausweistyp
Verbrauchsausweis
Gebäudetyp
Nicht-Wohngebäude
Baujahr laut Energieausweis
1996
Wesentliche Energieträger
Gas
Gültigkeit
05.10.2017 bis 05.10.2027
Endenergieverbrauch (Wärme)
89,80 kWh/(m²·a)
Weitere Energiedaten
Energieträger
Gas
Heizungsart
Fußbodenheizung
Details
Objektbeschreibung
Verkauft wird eine derzeit vermietete Büro-Gewerbeeinheit mit Tiefgaragenstellplatz, wel-che zum 01.04.2026 frei wird.
Sie ist Bestandteil eines Wohn- und Gewerbekomplexes, welcher 1996 errichtet wurde. Er zeichnet sich aus durch vielfältige Fassadengestaltung, vorspringende Trauf- und Firsthöhen, diverse...
Ausstattung
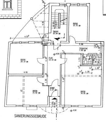
Diese Einheit besteht aus vier Büroräumen, kleiner Küchennische und zwei Toiletten. Die Räumlichkeiten sind sehr gepflegt, die Böden mit pflegeleichtem PVC ausgestattet. Die Iso-lierglasfenster sind teilweise mit Sprossen versehen. Im Untergeschoss ist eine zentrale Gas-heizung installiert.
Im Zuge der Umnutzung zu...
Preisinformation
1 Stellplatz
Weitere Informationen
Stichworte
Tiefgarage vorhanden, Gesamtfläche: 116,49 m², Anzahl der separaten WCs: 2, 4 Etagen
Sonstiges: EDV-Verkabelung
Anbieter der Immobilie
Sommer Immobilien
Lutherplatz 6, 99817 Eisenach
Online-ID: 2mbcj5f
Referenznummer: 130825899#Jjo52t
Finde Angebote wie dieses
Hier geht es zu unserem Impressum, den Allgemeinen Geschäftsbedingungen, den Hinweisen zum Datenschutz und nutzungsbasierter Online-Werbung.