

ORANGE Immobilienagentur
Herr Christian Stangl
004 ···
Nr. anzeigenPreise & Kosten
Provision für Käufer
provisionsfrei
Lage
Seniorenwohnen dort, wo andere Urlaub machen
Einen entspannten, selbstbestimmten Lebensabend genießen - eingebettet in eine der schönsten Regionen Niederbayerns: Genau das bietet die Seniorenwohnanlage Seniorenwohnen Markt Hartkirchen. Hier verbinden sich Lebensqualität, Sicherheit und Heimatgefühl mit einer Lage, die...
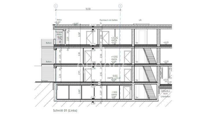
Die Wohnung
Kategorie
Terrassenwohnung
Bezug
Herbst 2026
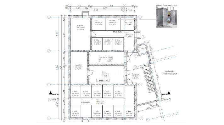
Wohnanlage
Energie & Heizung
Warum sehe ich diese Anzeige? – Du siehst diese Anzeige basierend auf Ihrer Navigation auf unserer Website und den Suchkriterien, die du verwendet hast.
Energieausweis: für diesen Gebäudetyp nicht notwendig
Weitere Energiedaten
Haustyp
KfW 55
Details
Objektbeschreibung
Seniorenwohnen Markt Hartkirchen - Lebensqualität auf höchstem Niveau, mit Sicherheit und Heimatgefühl in bester Lage!
Ein selbstbestimmtes Leben in Sicherheit, Komfort und Würde - eingebettet in eine der schönsten Regionen Niederbayerns: Mit dem dritten Bauabschnitt der Seniorenwohnanlage Markt Hartkirchen entsteht...
Ausstattung
Dieser Neubau verfügt über 16 Wohnungen, diese werden hier einzeln aufgeführt:
WHG 1 - Wohnhaus 1 / TYP A / Erdgeschoss (EG)
Diele 17,24 m²
Abstellraum 3,88 m²
Bad 6,75 m²
Wohnzimmer 21,89 m²
Schlafzimmer 1 12,43 m²
Schlafzimmer 2 11,17 m²
Terrasse (50%) 10,25 m²
Summe Wohnfläche 83,61...
Preisinformation
1 Garagenstellplatz, Kaufpreis: 25.000,00 EUR
Weitere Informationen
Sonstiges
Gerne sind wir für weitere Fragen und Informationen unter Tel.: 0160 / 886 679 9 erreichbar.
Anfragen über die Immobilienportale werden nur mit vollständiger Adresse und Telefonnummer bearbeitet.
Unser exklusiver Service für Eigentümer
Sie möchten Ihr Einfamilienhaus, Mehrfamilienhaus, Ihre...
Anbieter der Immobilie
ORANGE Immobilienagentur
Kumpfmühler Str. 59, 93051 Regensburg

Online-ID: 2mbfb5z
Referenznummer: 236-KW-CS.1
Finde Angebote wie dieses
Hier geht es zu unserem Impressum, den Allgemeinen Geschäftsbedingungen, den Hinweisen zum Datenschutz und nutzungsbasierter Online-Werbung.