
Bau Barth Holzbau GmbH
Herr Hubert Barth
075 ···
Nr. anzeigenPreise & Kosten
in Warmmiete enthalten
Warum sehe ich diese Anzeige? – Du siehst diese Anzeige basierend auf Ihrer Navigation auf unserer Website und den Suchkriterien, die du verwendet hast.
Lage
Makrolage
Am Obersee oder auch bekannt als Überlinger See liegt Überlingen am Bodensee. Ein weit über die Grenzen bekannter Luftkurort mit sehr hohen Erlebnis- und Erholungsfaktor.
Über die unmittelbar in Laufnähe erreichbare Bushaltestelle gelangen Sie direkt in die Innenstadt, sowie an den Busbahnhof, sowie...
Die Wohnung
Wohnungslage
1. Geschoss
Bezug
sofort
Derzeitige Nutzung
frei
Wohnanlage
Energie & Heizung
Warum sehe ich diese Anzeige? – Du siehst diese Anzeige basierend auf Ihrer Navigation auf unserer Website und den Suchkriterien, die du verwendet hast.
Weitere Energiedaten
Energieträger
Elektro
Haustyp
Fertighaus
Heizungsart
Fußbodenheizung, Luft-/Wasser-Wärmepumpe, Zentralheizung
Details
Objektbeschreibung
SEESICHT I ERSTBEZUG I NIEDRIGSTE NEBENKOSTEN
Die hier angebotenen sechs Mietwohnungen befinden sich innerhalb eines neu erstellen Mehrfamilienhauses mit nur 15 Wohneinheiten in sehr zentraler und toller Aussichtslage in Überlingen am Bodensee.
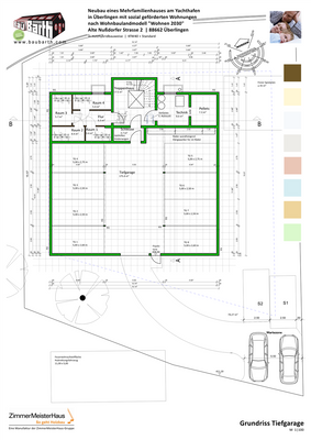
Im Untergeschoss befinden sich der Technikraum, die Abstellräume sowie...
Preisinformation
6 Stellplätze, Miete je: 90,00 EUR
8 Tiefgaragenstellplätze, Miete je: 140,00 EUR
Weitere Informationen
Sonstiges
Sehr geehrte Interessentinnen, sehr geehrte Interessenten,
wir freuen uns, in Überlingen am Bodensee, für Sie großzügige Wohnungen zur Miete in schöner, zentrumsnaher Lage anbieten zu können. Unser Objekt bietet Ihnen eine Wohnung in gehobener Ausstattung. Das umfassende, moderne Energiekonzept steht für...
Dokumente
Anbieter der Immobilie
Bau Barth Holzbau GmbH
Zeppelinring 7 - 13, 88696 Owingen
Online-ID: 2mbg95a
Referenznummer: 145 (1/137)
Finde Angebote wie dieses
Hier geht es zu unserem Impressum, den Allgemeinen Geschäftsbedingungen, den Hinweisen zum Datenschutz und nutzungsbasierter Online-Werbung.