

Zinshausteam & Kenbo Projektvermarktung GmbH
Frau Laura Urbath
040 ···
Nr. anzeigenPreise & Kosten
Provision für Käufer
provisionsfrei
Lage
WINTERHUDE - LIFESTYLE ZWISCHEN ALSTER UND STADTPARK
Das grüne Herz Winterhudes ist mit viel Natur Freiraum der Hamburger Stadtpark. Auf 150 Hektar Fläche gibt es ein Freizeitangebot, das in der Stadt seinesgleichen sucht. Vom Objekt gelangt man zu Fuß in fünf Minuten hierher.
Das Kulturzentrum Kampnagel, die...
Die Wohnung
Kategorie
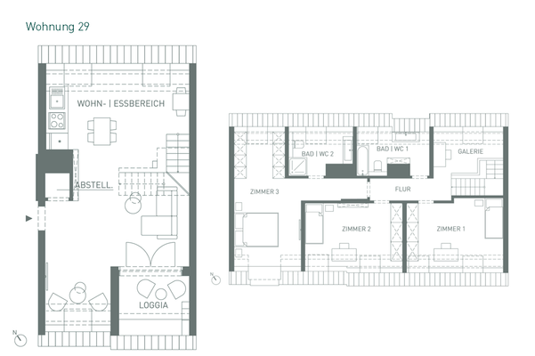
Maisonette
Wohnungslage
3. Geschoss (Dachgeschoss)
Bezug
sofort
Derzeitige Nutzung
frei
Wohnanlage
Energie & Heizung
Warum sehe ich diese Anzeige? – Du siehst diese Anzeige basierend auf Ihrer Navigation auf unserer Website und den Suchkriterien, die du verwendet hast.
Energieausweistyp
Bedarfsausweis
Gebäudetyp
Wohngebäude
Baujahr laut Energieausweis
1928
Wesentliche Energieträger
Erdgas E, Strom-Mix
Gültigkeit
10.09.2024 bis 09.09.2024
Effizienzklasse
E
Endenergiebedarf
139,20 kWh/(m²·a)
Weitere Energiedaten
Energieträger
Erdwärme
Heizungsart
Luft-/Wasser-Wärmepumpe
Details
Objektbeschreibung
HANSEATISCHER KLASSIKER MIT NEUBAU-DACHGESCHOSS IN STADTPARKNÄHE
- Sehr gepflegter Rotklinker aus den 1930er-Jahren
- Objekt & 24 Bestandswohnungen umfassend renoviert
- Ausbau Dachgeschoss mit 8 Neubau-Wohnungen
- Großzügiges Grundstück mit schönem Baumbestand
- Unmittelbare Nähe zum Stadtpark
-...
Ausstattung
LICHTDURCHFLUTETE NEUBAU DACHGESCHOSS-WOHNUNG
+ Helle & großzügige Wohnung über zwei Ebenen
+ Offener Wohn- und Essbereich als kommunikativem Mittelpunkt
+ Moderne Bäder mit italienischen Natursteinfliesen
+ Helles, modernes Eichenparkett
+ Gemütliche Loggia mit Ausblick über die Dächer...
Weitere Informationen
Besichtigungstermine
nach Vereinbarung.
Dokumente
Anbieter der Immobilie

Online-ID: 2mbgn5z
Finde Angebote wie dieses
Hier geht es zu unserem Impressum, den Allgemeinen Geschäftsbedingungen, den Hinweisen zum Datenschutz und nutzungsbasierter Online-Werbung.