
Sparkasse Kulmbach-Kronach i. V. der Sparkassen-Immobilien-Vermittlungs- GmbH
Herr Bertram Hildner und Kai Schröder Immobilienbüro Kulmbach
092 ···
Nr. anzeigenPreise & Kosten
Provision für Käufer
provisionsfrei
Die Wohnung
Wohnanlage
Energie & Heizung
Warum sehe ich diese Anzeige? – Du siehst diese Anzeige basierend auf Ihrer Navigation auf unserer Website und den Suchkriterien, die du verwendet hast.
Energieausweistyp
Bedarfsausweis
Gebäudetyp
Wohngebäude
Baujahr laut Energieausweis
1908
Wesentliche Energieträger
Gas
Gültigkeit
13.10.2025 bis 12.10.2035
Effizienzklasse
H
Endenergiebedarf
439,50 kWh/(m²·a)
Weitere Energiedaten
Energieträger
Gas
Heizungsart
Zentralheizung
Details
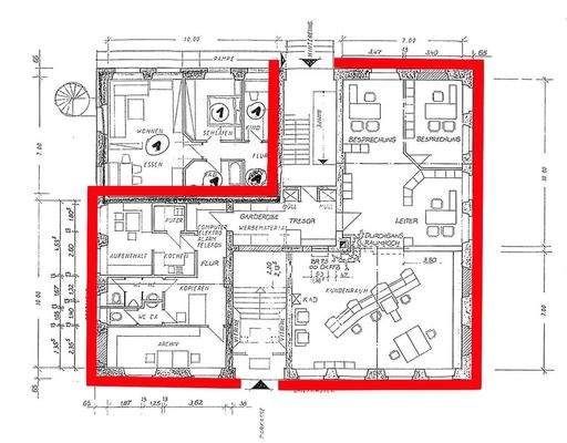
Objektbeschreibung
Ehemalige Sparkassenfiliale in Presseck
- die Gewerbeimmobilie bietet auch eine wohnwirtschaftliche Nutzungsmöglichkeit in Form von ein bis zwei Eigentumswohnungen. Hierfür sind jedoch entsprechende Umbaumaßnahmen erforderlich
- Nutzfläche ca. 245 m² im Erdgeschoss
- barrierefreier Zugang über Rampe am...
Weitere Informationen
Stichworte
Stellplatz vorhanden, Anzahl der separaten WCs: 1, Bundesland: Bayern
Anbieter der Immobilie
Sparkasse Kulmbach-Kronach i. V. der Sparkassen-Immobilien-Vermittlungs- GmbH
Fritz-Hornschuch-Str. 10, 95326 Kulmbach
Herr Bertram Hildner und Kai Schröder Immobilienbüro Kulmbach
Dein Ansprechpartner
092 ···
Nr. anzeigenOnline-ID: 2mbhh5a
Referenznummer: 1/20/179-179/010884
Finde Angebote wie dieses
Hier geht es zu unserem Impressum, den Allgemeinen Geschäftsbedingungen, den Hinweisen zum Datenschutz und nutzungsbasierter Online-Werbung.