Christine Schülke-Immobilien

Frau Christine Schülke

Repräsentative und vielseitig nutzbare Gewerberäume in Wang

€ 1.000
Nettomiete zzgl. NK
29,31 m²
Bürofläche ca.
k.A.
Teilbare Fläche
k.A.
Zimmer

Der Anbieter dieses Objekts hat gegenüber der AVIV Germany GmbH als Betreiber dieses Online-Marktplatzes erklärt, nicht als Unternehmer im Sinne des § 1 KSchG zu handeln. Die im Verbraucherschutzrecht der Union verankerten Verbraucherrechte (insbesondere Informationspflichten und Rücktritts- bzw. Widerrufsrechte) finden auf den Vertrag zwischen dem Anbieter des Objekts und Ihnen (dem Interessenten) keine Anwendung.

Gewerblicher Anbieter

Der Anbieter dieses Objekts hat gegenüber der AVIV Germany GmbH als Betreiber dieses Online-Marktplatzes erklärt, als Unternehmer im Sinne des § 1 KSchG zu handeln.

AdresseStraße nicht freigegeben
85368 Moosburg 
(Zieglberg)
Auf Karte ansehen

Preise & Kosten

Nettomiete € 1.000 Nebenkosten € 200 Heizkosten in Warmmiete enthalten Warmmiete € 1.240 2 Stellplätze, je € 20

Kaution

3 MM

Provision für Mieter

2,38 % incl. 19 % Mwst inkl. MwSt.
Da es sich um ein Gewerbeobjekt handelt, ist die Provision vom Mieter zu bezahlen.

Lage

Diese Gewerbeeinheit befindet sich in Randlage von Moosburg a.d.Isar. Durch die Nähe nach Moosburg ist eine hervorragende Anbindung an die umliegenden Verkehrswege gegeben.
Ca. 2 km nach Moosburg a.d. Isar, ca. 8,5 km zur A92, ca. 23 km zum Flughafen München.

Büro-/Praxisfläche

Kategorie

Bürofläche

Bezug

01.01./01.02.2026

  • Böden: Fliesenboden
  • gepflegt
  • 2 Stellplätze

Energie & Heizung

Weitere Energiedaten

Energieträger

Öl

Heizungsart

Fußbodenheizung, Zentralheizung

Details

Objektbeschreibung

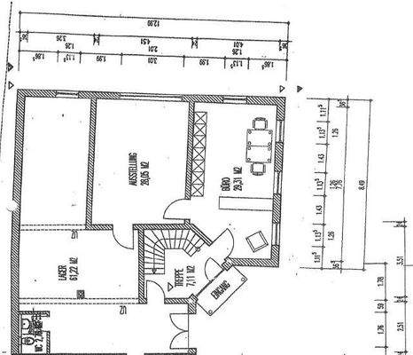
Die individuell nutzbaren Räumlichkeiten befinden sich im EG eines sehr gepflegten Wohn/Geschäftshauses und werden zum 01.01.2026/01.02.2026 zur Miete angeboten. Hier können Sie eine Praxis, Kanzlei, Gewerbe mit Ausstellungsraum oder Büro mit Lager und einiges mehr einrichten.
Die drei miteinander verbundenen Räume...

Mehr anzeigen

Ausstattung

Fußbodenheizung,elektrische Jalousien, Glasfaser ab 2026/2027
Die hochwertige Büroausstattung kann vom Vormieter übernommen werden.
2 Aussenstellplätze, Kraftstromanschluss vorhanden

Preisinformation

2 Stellplätze, Miete je: 20,00 EUR

Weitere Informationen

Sonstiges
Die Angaben und Unterlagen zu den Objekten basieren auf erteilten Informationen Dritter. Für die Richtigkeit und Vollständigkeit kann deshalb keine Haftung übernommen werden.
Weitere Miet- und Kaufobjekte finden Sie unter: www.schuelke-immobilien.de

Stichworte
Nutzfläche: 121,00 m², Gesamtfläche...

Mehr anzeigen

Anbieter der Immobilie

Christine Schülke-Immobilien

im Durchschnitt  4,80  Sterne
(bei 3 Bewertungen)

Freisinger Str. 52, 85416 Langenbach

user

Frau Christine Schülke

Dein Ansprechpartner

Anbieter-Website Anbieter-Profil Anbieter-Impressum

Online-ID: 2mbjq5h

Referenznummer: GwM0047

Finde Angebote wie dieses

imageimageimage

Hier geht es zu unserem Impressum, den Allgemeinen Geschäftsbedingungen, den Hinweisen zum Datenschutz und nutzungsbasierter Online-Werbung.