
Kettenbach Immobilien GmbH
Frau Irene Kettenbach
004 ···
Nr. anzeigenPreise & Kosten
Provision für Käufer
Bitte beachte, das Angebot kann bei Vertragsabschluss die Zahlung einer Provision beinhalten. Weitere Informationen erhältst Du vom Anbieter.
Lage
Das Objekt befindet sich in einer der begehrtesten Lagen von Solingen-Wald in einer Sackgasse, abseits von Straßenlärm!
Die Hanglage garantiert nicht nur eine hervorragende Besonnung den ganzen Tag über, sondern auch einen dauerhaften Schutz vor Einblicken.
Schulen, Kitas und Einkaufsmöglichkeiten sind in wenigen...
Das Haus
Kategorie
Doppelhaushälfte
Energie & Heizung
Warum sehe ich diese Anzeige? – Du siehst diese Anzeige basierend auf Ihrer Navigation auf unserer Website und den Suchkriterien, die du verwendet hast.
Weitere Energiedaten
Heizungsart
Fußbodenheizung, Luft-/Wasser-Wärmepumpe
Details
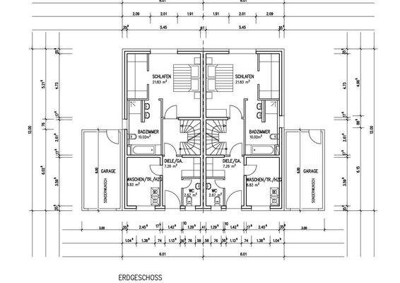
Objektbeschreibung
Architektur, die den Horizont öffnet. Diese moderne Doppelhaushälfte wurde speziell für die anspruchsvolle Topografie dieses Grundstücks entworfen. Durch die geschickte Hangbauweise entstehen lichtdurchflutete Ebenen.
Während sich das Haus zur Straßenseite hin diskret und sicher präsentiert, öffnet es sich zur Talseite...
Ausstattung
- ca 216 qm überschaubares und pflegeleichtes Grundstück
- ca. 159 qm Wohnfläche
- Garage möglich
- Terrasse und Hausanschlüsse sowie die Fliesen in den Bädern sind im Preis enthalten.
- Malerarbeiten, Oberböden und Außenanlagen in Eigenleistung
- Fertigstellung nach Baugenehmigung ca. 8 Monate
- Luft-...
Weitere Informationen
Stichworte
Anzahl der Schlafzimmer: 3, Anzahl der Badezimmer: 2, Anzahl der separaten WCs: 1, Anzahl Terrassen: 1
Anbieter der Immobilie
Kettenbach Immobilien GmbH
Löhdorfer Straße 281, 42699 Solingen
Online-ID: 2mbm85v
Referenznummer: 2915
Finde Angebote wie dieses
Hier geht es zu unserem Impressum, den Allgemeinen Geschäftsbedingungen, den Hinweisen zum Datenschutz und nutzungsbasierter Online-Werbung.