

Bauteam GmbH
Herr Roman Bürger
0 3 ···
Nr. anzeigenPreise & Kosten
Provision für Käufer
3,57% inkl. 19% MwSt.
Lage
Der Bungalow befindet sich in ruhiger Wohnlage von Niepars, einer charmanten Gemeinde in der Nähe von Stralsund. Die Umgebung zeichnet sich durch eine angenehme Nachbarschaft, viel Grün und eine gute Anbindung an die Stadt sowie die Ostseeküste aus. Einkaufsmöglichkeiten, Schule und medizinische Versorgung sind schnell...
Das Haus
Kategorie
Bungalow
Baujahr
2025
Energie & Heizung
Warum sehe ich diese Anzeige? – Du siehst diese Anzeige basierend auf Ihrer Navigation auf unserer Website und den Suchkriterien, die du verwendet hast.
Energieausweistyp
Bedarfsausweis
Gebäudetyp
Wohngebäude
Wesentliche Energieträger
Strom
Gültigkeit
07.05.2024 bis 07.05.2034
Effizienzklasse
A+
Endenergiebedarf
29,60 kWh/(m²·a)
Weitere Energiedaten
Haustyp
Massivhaus
Energieträger
Elektro
Heizungsart
Fußbodenheizung, Luft-/Wasser-Wärmepumpe
Details
Objektbeschreibung
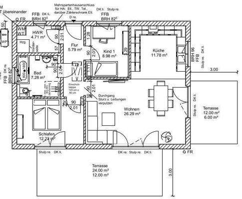
Dieser im Jahr 2025 fertiggestellte Bungalow bietet komfortables und energieeffizientes Wohnen auf einer Ebene. Auf einer Wohnfläche von ca. 95 m² (inkl. anteilig Terrassenflächen) vereint das Haus moderne Architektur, hochwertige Ausstattung und eine durchdachte Raumaufteilung – ideal für Paare, kleine Familien oder...
Ausstattung
Eckdaten:
+ Grundstück: ca. 675 m²
+ Wohnfläche: ca. 95 m² (*inkl. anteilig Terrassenflächen)
+ Baujahr: 2025
+ Massivhaus
+ offene Wohnküche
+ 1 Kinder-, Gäste- o. Arbeitszimmer
+ 1 Schlafzimmer
+ modernes Bad mit Dusche & Badewanne
+ Fußbodenheizung in allen Räumen
+...
Weitere Informationen
Sonstiges
Dieses frisch errichtete Haus in top Zustand bietet Ihnen die Chance auf ein modernes Familienleben in einer aufstrebenden Umgebung. Ideal für Familien, die ein neues Zuhause suchen, wo sie ihre Träume verwirklichen können.
Zögern Sie nicht! Kontaktieren Sie uns noch heute, um eine Besichtigung zu...
Anbieter der Immobilie
Bauteam GmbH
Bauhofstraße 1 E, 18439 Stralsund

Online-ID: 2mbmf57
Referenznummer: EFHRAAF43 NIEP
Finde Angebote wie dieses
Hier geht es zu unserem Impressum, den Allgemeinen Geschäftsbedingungen, den Hinweisen zum Datenschutz und nutzungsbasierter Online-Werbung.