

ORANGE Immobilienagentur
Herr Franz Brendel
017 ···
Nr. anzeigenPreise & Kosten
Provision für Käufer
3,57 % inkl. gesetzlicher MwSt.
Lage
93057 Regensburg - Konradsiedlung / Wutzlhofen
Die angebotene Immobilie liegt im Norden von Regensburg und ist durch seine Lage, insbesondere für die Anfahrt mit dem PKW, bestens angebunden.
Das Haus liegt in einer ruhigen Umgebung mit Wohnstraßen und kurzen Wegen ins Grüne.
Hier können Sie in Ruhe...
Büro-/Praxisfläche
Kategorie
Bürofläche
Bezug
sofort
Energie & Heizung
Warum sehe ich diese Anzeige? – Du siehst diese Anzeige basierend auf Ihrer Navigation auf unserer Website und den Suchkriterien, die du verwendet hast.
Wärme
Energieausweistyp
Verbrauchsausweis
Gebäudetyp
Nicht-Wohngebäude
Baujahr laut Energieausweis
2008
Gültigkeit
bis 16.09.2031
Endenergieverbrauch (Wärme)
73,90 kWh/(m²·a)
Weitere Energiedaten
Energieträger
Elektro
Details
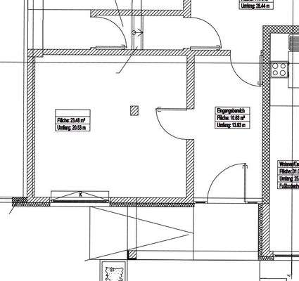
Objektbeschreibung
Willkommen in Ihrem neuen Arbeits- oder Wohnraum!
Diese "junge" Immobilie aus 2008 bietet vielfältige Möglichkeiten zur Nutzung und befindet sich in der begehrten Konradsiedlung-Wutzlhofen. Hier sind die Eckdaten im Detail:
Die Immobilie liegt im Untergeschoss eines gepflegten Mehrfamilienhauses mit insgesamt 6...
Ausstattung
* Barrierefreier, ebenerdiger Zugang ermöglicht eine bequeme Erreichbarkeit ohne Hindernisse
* Die Immobilie ist unabhängig vom restlichen Haus, was eine hohe Privatsphäre gewährleistet
* Geringe Betriebs- und Nebenkosten machen diese Immobilie besonders attraktiv
* Heizung und Warmwasser werden mittels Strom...
Weitere Informationen
Sonstiges
Gerne sind wir für weitere Fragen und Informationen unter Tel.: 09181-883 004 2 erreichbar.
Bei Kauf/Miete verpflichtet sich der Käufer/Mieter an ORANGE Immobilienagentur - Franz Brendel, selbst. Immobilienmakler, eine Maklerprovision in der angegebenen Höhe nach notariellem Kaufvertrag bzw. nach einem...
Anbieter der Immobilie
ORANGE Immobilienagentur
Kumpfmühler Str. 59, 93051 Regensburg

Online-ID: 2mbmt5u
Referenznummer: 440-KG-B.2
Finde Angebote wie dieses
Hier geht es zu unserem Impressum, den Allgemeinen Geschäftsbedingungen, den Hinweisen zum Datenschutz und nutzungsbasierter Online-Werbung.