

Wohnung zur Miete732 €3 Zimmer • 82,1 m²
732 €
3 Zimmer • 82,1 m²
GUTENSTEIN II, geförderte Mietwohnung, 1.OG Stg.2-TOP 1, 1000/00008340/00001101
Merkmale
- Bezug: sofort
- Stellplatz
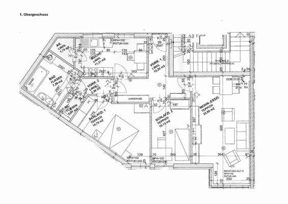
Grundrisse
Grundrisse
1 / 2
Realisiere Dein Projekt
Bausubstanz und Energie
Möchtest du Details zum Energieverbrauch?

- Baujahr2002
- Zustand der Immobilieneuwertig
Mietkosten
Gesamtmiete
731,99 €
Nettokaltmiete
nicht angegeben
Kaution
keine Angabe
Weitere Preisinformationen
Finanzierungsbeitrag: EUR 1,376.18
Lage

Gutenstein (2770)
Der Anbieter hat die genaue Adresse nicht freigegeben
Weitere Informationen
Weitere Services
Lust auf eine Besichtigung?
Eine Frage zur Immobilie?
Über den Anbieter
Siegfried Ludwig-Platz 1, 3100 ST. PÖLTEN

Frau HOFMANN AnnaDein Kontakt
Online-ID: 253736A641PP
Referenznummer: 1000/00008340/00001101


Alpenland Gemeinnützige Bau-, Wohn- und Siedlungsgenossenschaft reg.Gen. m.b.H
Wie zufrieden bist du mit dieser Seite (nicht mit der Immobilie selbst)?

