
EVC Hannover GmbH
Team Hannover
+49 ···
Nr. anzeigenPreise & Kosten
Provision für Käufer
7,14 % auf den Kaufpreis inkl. gesetzlicher MwSt.
Der Maklervertrag mit uns kommt durch schriftliche Vereinbarung oder auch durch die Inanspruchnahme unserer Maklertätigkeit auf der Basis des Objektexposés und seiner Bedingungen zustande. Sollte das v
Lage
Der Landkreis Stade liegt westlich von Hamburg und zählt rund 210.000 Einwohner. Er gehört zur Metropolregion Hamburg und verbindet die Vorzüge einer dynamischen Wirtschaftsregion mit hoher Lebensqualität im ländlich geprägten Raum. Verwaltungssitz ist die Hansestadt Stade, eine historische Altstadt mit maritimem Flair...
Das Renditeobjekt
Baujahr
1973
Energie & Heizung
Warum sehe ich diese Anzeige? – Du siehst diese Anzeige basierend auf Ihrer Navigation auf unserer Website und den Suchkriterien, die du verwendet hast.
Energieausweistyp
Bedarfsausweis
Gebäudetyp
Wohngebäude
Baujahr laut Energieausweis
1973
Wesentliche Energieträger
Flüssiggas
Gültigkeit
seit 20.08.2025
Effizienzklasse
F
Details
Objektbeschreibung
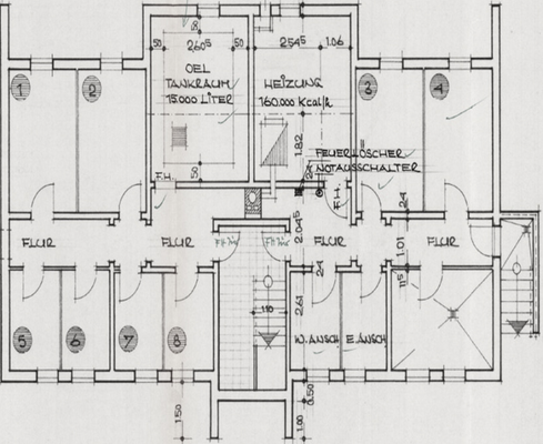
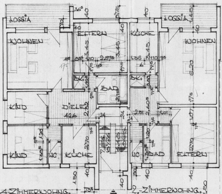
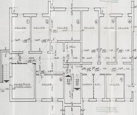
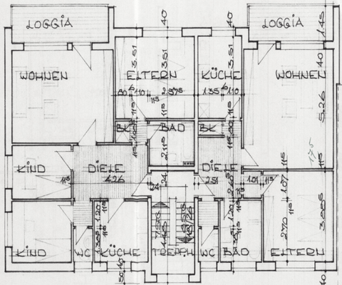
Bei der angebotenen Wohnanlage handelt es sich um zwei versetzt aneinander gebaute Mehrfamilienhäuser mit insgesamt 16 Wohneinheiten und jeweils getrennten Eingangsbereichen. Die Gebäude wurden im Jahr 1973 in massiver roter Ziegelbauweise errichtet und vermitteln durch ihre klare Architektur einen soliden, zeitlosen Eindruck...
Ausstattung
- 16 Wohneinheiten
- solide, massive Bauweise
- zeitgemäße Architektur
- Gebäude ist voll unterkellert
- großzügiges Grundstück
- umfangreiche Parkmöglichkeiten
- 8 Garagen & 4 Außenstellplätze
- vorteilhaft geschnittene Wohneinheiten mit sonnigen Loggien
Anbieter der Immobilie
Online-ID: 2mbpb5y
Referenznummer: EV06261
Finde Angebote wie dieses
Hier geht es zu unserem Impressum, den Allgemeinen Geschäftsbedingungen, den Hinweisen zum Datenschutz und nutzungsbasierter Online-Werbung.