
Heese und Acar Immobilien GmbH
+49 ···
Nr. anzeigenPreise & Kosten
Provision für Käufer
2,38 %
2,38 % vom Kaufpreis inkl. 19 % gesetzlicher MwSt., zahlbar vom Käufer. Die Provision ist fällig und verdient mit Beurkundung des Kaufvertrages. Wir haben einen provisionspflichtigen Maklervertrag mit dem Verkäufer in gleicher Höhe abgeschlosse
Lage
Das Neubauprojekt in der Otto-Nuschke-Straße 18 entsteht im idyllischen Ortsteil Brusendorf der Stadt Mittenwalde. Eingebettet in eine ruhige, gewachsene Wohngegend mit ländlichem Charme, bietet der Standort ein hohes Maß an Lebensqualität - grün, familienfreundlich und dennoch hervorragend angebunden. Die aufgelockerte...
Das Haus
Kategorie
Reihenmittelhaus
Baujahr
2026
Bezug
3. Quartal 2026
Energie & Heizung
Warum sehe ich diese Anzeige? – Du siehst diese Anzeige basierend auf Ihrer Navigation auf unserer Website und den Suchkriterien, die du verwendet hast.
Energieausweistyp
Bedarfsausweis
Gebäudetyp
Wohngebäude
Wesentliche Energieträger
Luftwärmepumpe
Gültigkeit
12.09.2025 bis 11.09.2035
Effizienzklasse
A
Endenergiebedarf
32,00 kWh/(m²·a)
Weitere Energiedaten
Heizungsart
Fußbodenheizung, Luft-/Wasser-Wärmepumpe
Details
Objektbeschreibung
Im exklusiven Auftrag des ausführenden Bauträgers
In Mittenwalde-Brusendorf, einem reizvollen Ortsteil im Kreis Dahme-Spreewald, entstehen 9 elegante Reihenhäuser im Neubau nach modernsten Standards. Wir schaffen ein Zuhause in einer Umgebung, die sowohl naturnah als auch exzellent an die vitalen Zentren der Hauptstadt...
Ausstattung
+ 9 Reihenhäuser (Reihenmittel- & Reihenendhäuser) nebst gemeinschaftlicher Außenanlage
+ Schlüsselfertiger Neubau im Erstbezug
+ real geteilte Flurstücke, private Grundstücksflächen
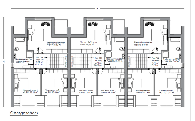
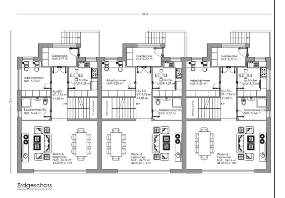
+ Großzügige ca. 177m² Wohn-Nutzfläche pro Einheit
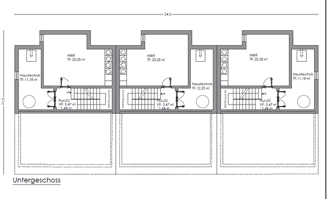
+ Teilunterkellert für zusätzlichen Stauraum
+ geräumige, vom Wohnzimmer...
Preisinformation
2 Stellplätze
Weitere Informationen
Sonstiges
Datenschutz und Vertraulichkeit:
Wir bitten um Ihr Verständnis, dass wir Exposés nur an Interessenten versenden, die uns ihre vollständige Adresse sowie Telefonnummer mitteilen. Ihre Daten behandeln wir selbstverständlich vertraulich und geben sie nicht an Dritte weiter.
Zuverlässige Begleitung:
Von...
Anbieter der Immobilie
Online-ID: 2mbpt55
Referenznummer: Reihenmittelhaus 2
Finde Angebote wie dieses
Hier geht es zu unserem Impressum, den Allgemeinen Geschäftsbedingungen, den Hinweisen zum Datenschutz und nutzungsbasierter Online-Werbung.