

Immo Checker
Frau Constanze Beier
037 ···
Nr. anzeigenPreise & Kosten
Kaution
700
Warum sehe ich diese Anzeige? – Du siehst diese Anzeige basierend auf Ihrer Navigation auf unserer Website und den Suchkriterien, die du verwendet hast.
Lage
direkt am Küchwald gelegen
Die Wohnung
Kategorie
Apartment
Wohnungslage
3. Geschoss
Bezug
01.04.2026
Wohnanlage
Energie & Heizung
Warum sehe ich diese Anzeige? – Du siehst diese Anzeige basierend auf Ihrer Navigation auf unserer Website und den Suchkriterien, die du verwendet hast.
Energieausweis: für diesen Gebäudetyp nicht notwendig
Weitere Energiedaten
Heizungsart
Zentralheizung
Details
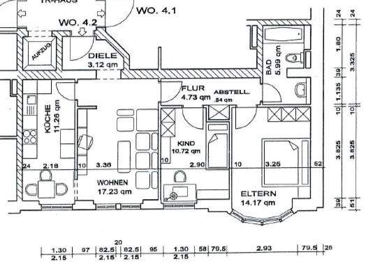
Objektbeschreibung
-saniertes Mehrfamilienhaus
-unterkellert
-Aufzug
Ausstattung
- nutzerfreundlicher Grundriss
- alle Räume vom Flur begehbar
- Bad mit Wanne
- geräumige Zimmer
- Schlafzimmer ca. 14 m²
- Kinderzimmer ca. 11 m²
- Wohnzimmer ca. 17 m²
- Laminatfarbe: Buche
Weitere Informationen
Stichworte
Anzahl der Schlafzimmer: 1, Anzahl der Badezimmer: 1, 4 Etagen
Anbieter der Immobilie
Immo Checker
Henriettenstr. 77, 09112 Chemnitz

Online-ID: 2mbpz5y
Referenznummer: 126913433#kyokuQ
Finde Angebote wie dieses
Hier geht es zu unserem Impressum, den Allgemeinen Geschäftsbedingungen, den Hinweisen zum Datenschutz und nutzungsbasierter Online-Werbung.