
Wittlinger & Compagnie GmbH & Co. KG
Herr Giuliano de Souza
004 ···
Nr. anzeigenPreise & Kosten
Kaution
4 Bruttomonatsmieten zzgl. Ust.
Provision für Mieter
provisionsfrei
Warum sehe ich diese Anzeige? – Du siehst diese Anzeige basierend auf Ihrer Navigation auf unserer Website und den Suchkriterien, die du verwendet hast.
Lage
Mitten im Herzen von Pinneberg, direkt an der Friedrich-Ebert-Straße, befindet sich das Neubauprojekt FRIEDRICHS-UFER.
Die Lage überzeugt durch kurze Wege, hohe Frequenz und ein lebendiges Umfeld.
Die Rathauspassage, zahlreiche Einkaufsmöglichkeiten, Cafés, Apotheken und ärztliche Versorgungseinrichtungen sind...
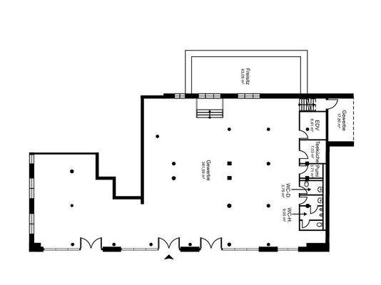
Die Ladenfläche
Kategorie
Laden
Baujahr
2025
Bezug
01.04.2026
Erdgeschoss
Energie & Heizung
Warum sehe ich diese Anzeige? – Du siehst diese Anzeige basierend auf Ihrer Navigation auf unserer Website und den Suchkriterien, die du verwendet hast.
Wärme
Strom
Energieausweistyp
Bedarfsausweis
Gebäudetyp
Nicht-Wohngebäude
Baujahr laut Energieausweis
2025
Wesentliche Energieträger
KWK_FOSSIL
Gültigkeit
17.07.2022 bis 16.07.2035
Endenergiebedarf (Wärme)
62,30 kWh/(m²·a)
Endenergiebedarf (Strom)
24,70 kWh/(m²·a)
Details
Objektbeschreibung
Im Neubauprojekt FRIEDRICHS-UFER in zentraler Lage von Pinneberg entstehen vielseitig nutzbare Gewerbeeinheiten mit hoher Aufenthaltsqualität und flexibler Raumgestaltung.
Insgesamt stehen acht attraktive Flächen im Erdgeschoss zur Verfügung - sechs davon mit direkter Straßenpräsenz, zwei weitere sind ruhig zum Innenhof...
Ausstattung
Zur funktionalen Ausstattung zählen barrierefreie Zugänge sowie praktische Nebenräume oder Lagerflächen, die direkt an die Einheit angeschlossen oder im Untergeschoss untergebracht sind. Jede Fläche wird im veredelten Rohbauzustand übergeben - inklusive vorbereiteten Sanitäranlagen und Rohfußboden - sodass der Innenausbau...
Weitere Informationen
Sonstiges
Die Vermietung erfolgt provisionsfrei für den Mieter bei einer Mietlaufzeit von 10 Jahren.
Stichworte
Nutzfläche: 462,88 m², Gesamtfläche: 462,88 m², vermietbare Fläche: 462,88 m², Ladenfläche: 462,88 m², Gastronomiefläche: 462,88 m², Bundesland: Schleswig-Holstein
Anbieter der Immobilie
Online-ID: 2mbqg5q
Referenznummer: vm_eh_fes28_9
Finde Angebote wie dieses
Hier geht es zu unserem Impressum, den Allgemeinen Geschäftsbedingungen, den Hinweisen zum Datenschutz und nutzungsbasierter Online-Werbung.