
iad Deutschland GmbH
Frau Manuela Welter-Fischer
004 ···
Nr. anzeigenPreise & Kosten
Provision für Käufer
2,38 % inkl. Mwst. inkl. MwSt.
Lage
Das Reihenendhaus befindet sich in einer ruhigen und familienfreundlichen Wohnlage von Neuhausen im Enzkreis. Die Gemeinde liegt naturnah am Rand des Nordschwarzwalds und überzeugt mit einer sehr guten Lebensqualität. Einkaufsmöglichkeiten, Ärzte, Apotheken sowie Kindergärten und Schulen befinden sich in kurzer...
Das Haus
Kategorie
Reihenendhaus
Baujahr
1978
Bezug
sofort
Energie & Heizung
Warum sehe ich diese Anzeige? – Du siehst diese Anzeige basierend auf Ihrer Navigation auf unserer Website und den Suchkriterien, die du verwendet hast.
Energieausweistyp
Bedarfsausweis
Gebäudetyp
Wohngebäude
Baujahr laut Energieausweis
2010
Wesentliche Energieträger
OEL
Gültigkeit
bis 03.12.2035
Effizienzklasse
G
Endenergiebedarf
243,60 kWh/(m²·a)
Weitere Energiedaten
Energieträger
Öl
Heizungsart
Fußbodenheizung
Details
Objektbeschreibung
Kurz-Exposé für Portale
Charmantes Reihenendhaus in ruhiger Lage von Neuhausen (Enzkreis)
Dieses Reihenendhaus am ruhigen Ortsrand von Neuhausen bietet ideale Wohnbedingungen für Familien, Paare oder alle, die ein naturnahes und gleichzeitig gut angebundenes Zuhause suchen.
Der helle Wohn- und Essbereich mit...
Ausstattung
großes Bad mit Wanne, Dusche, WC, Bidet, 2 Waschbecken und Fenster.
Fußbodenheizung.
Fliesen im Erdgeschoss
Öl-Zentralheizung /Fußbodenheizung
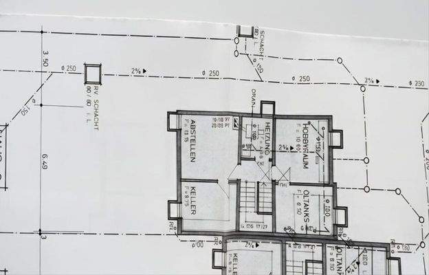
Keller
Garage
Garten
Terrasse und Balkon
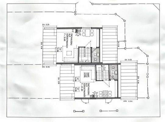
Dachgeschoss zum Ausbau vorbereitet, Anschlüsse für ein Bad vorhanden.
Preisinformation
1 Stellplatz
1 Garagenstellplatz
Weitere Informationen
Sonstiges
An den Kunden durch uns weitergeleitete Angaben und Informationen zu Objekten liegen die uns erteilten Auskünfte des Veräußerers bzw. Vermieters zugrunde. Die I@D Deutschland GmbH hat diese Angaben nicht geprüft. Vielmehr obliegt die Prüfung der Richtigkeit und/oder Vollständigkeit der Angaben allein dem Kunden...
Anbieter der Immobilie
iad Deutschland GmbH
Schleusenstraße 15-17, 60327 Frankfurt am Main
Online-ID: 2mbqn5p
Referenznummer: iad-3857
Finde Angebote wie dieses
Hier geht es zu unserem Impressum, den Allgemeinen Geschäftsbedingungen, den Hinweisen zum Datenschutz und nutzungsbasierter Online-Werbung.