

IFC Immobiliengesellschaft mbH
Herr Paul-Ludwig Blümel
034 ···
Nr. anzeigenPreise & Kosten
Provision für Käufer
Die Provision beträgt 3,5 % vom Kaufpreis zzgl. MwSt..
Das Haus
Kategorie
Doppelhaushälfte
Geschosse
2 Geschosse
Baujahr
1958
Energie & Heizung
Warum sehe ich diese Anzeige? – Du siehst diese Anzeige basierend auf Ihrer Navigation auf unserer Website und den Suchkriterien, die du verwendet hast.
Weitere Energiedaten
Energieträger
Gas
Heizungsart
offener Kamin
Details
Objektbeschreibung
Baujahr:
ca. 1958
Raumaufteilung:
Erdgeschoss:
großes Wohnzimmer mit Kamin und Essbereich, Küche, Gäste-WC, Diele, Windfang
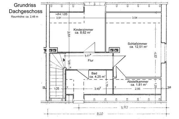
Ober- / Dachgeschoss:
Schlafzimmer mit Ankleide- / Abstellraum, Kinderzimmer, Bad, Flur
Unter- / Kellergeschoss:
vollständig unterkellert
Wohnfläche:
ca...
Ausstattung
Dach:
ca. 1996 - gedämmt und gedeckt
Fassade:
ca. 2019 - gedämmt, geputzt und gestrichen
Fenster:
ca. 1997 - Kunststoff weiß mit Jalousien
Türen:
ca. 2019 - weiße Holztüren, teilweise mit Glaseinsatz
ca. 2019 - Erneuerung der Kellertüren
ca. 2019 - Erneuerung der Hauseingangstür und...
Weitere Informationen
Sonstiges:
Um der EnEV § 17 genüge zutun, werden wir bei Besichtigung des Objektes, eine Kopie eines Energieverbrauchs- oder Energiebedarfsausweises vorlegen. Die entsprechenden Pflichtangaben werden umgehend hier veröffentlicht. Die IFC Immobiliengesellschaft mbH haftet nicht für die vom Eigentümer gemachten...
Dokumente
Anbieter der Immobilie

Online-ID: 2mbrs5d
Referenznummer: 2026
Finde Angebote wie dieses
Hier geht es zu unserem Impressum, den Allgemeinen Geschäftsbedingungen, den Hinweisen zum Datenschutz und nutzungsbasierter Online-Werbung.