
CPC Immobilien
Herr Gerhard Rock
+49 ···
Nr. anzeigenPreise & Kosten
Verhandlungsbasis
Provision für Käufer
Die vom Käufer zu zahlende Provision beträgt 3,57 % (inkl. MwSt.) vom notariellen Kaufpreis.
Lage
Das Grundstück befindet sich in unmittelbarer Nähe zum Bahnhof Althegenberg, eine Verlängerung der S3 von Mammendorf nach Althegenberg ist in Diskussion. Politisch gehört es zur Verwaltungsgemeinschaft Mammendorf.
Der Ort Althegenberg zeichnet sich durch seine naturnahe Umgebung aus, die gleichzeitig eine gute Anbindung an...
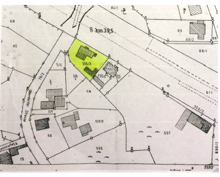
Das Grundstück
Details
Objektbeschreibung
Attraktives Bauträgergrund stück mit Entwicklungspoten zial – 780 m² Grundstück
Für Investoren und Bauträger eröffnet sich hier eine seltene Gelegenheit:
Das ca. 780 m² große Grundstück in ruhiger Lage von Althegnenberg ist mit einem Bungalow aus dem Jahr 1960 bebaut. Das Bestandsgebäude befindet sich im...
Weitere Informationen
Besichtigungstermine
Erreichbarkeit:
Täglich 9.oo—20.oo Uhr
Besichtigungstermin-Zeiten:
Nach Vereinbarung
Telefonnummer: +49 – 8141 / 395378
Mobil: +49 – 172 / 8979711
EMail-Adresse: Immobilien.cpc@online.de
Stichworte
Bebaubarkeit: Bebauungsplan, nach § 34 BauGB Nachbarkeit
Anbieter der Immobilie
Online-ID: 2mbsd5b
Finde Angebote wie dieses
Hier geht es zu unserem Impressum, den Allgemeinen Geschäftsbedingungen, den Hinweisen zum Datenschutz und nutzungsbasierter Online-Werbung.