
DER IMMO TIP Vermittlung von Immobilien GmbH
Herr Christian Müller
035 ···
Nr. anzeigenPreise & Kosten
Provision für Käufer
provisionsfrei
Lage
Das Grundstück befindet sich in Dresden Omsewitz, nahe des Landschaftsschutzgebietes Zschonergrund mit dem Zschonergrundbad und der Zschonermühle.
Omsewitz ist ein idyllischer Stadtteil im Westen von Dresden, der durch seine ruhige und naturnahe Atmosphäre besticht. Der Stadtteil ist geprägt von einer Mischung aus...
Die Wohnung
Wohnungslage
1. Geschoss
Bezug
in Abstimmung
Wohnanlage
Energie & Heizung
Warum sehe ich diese Anzeige? – Du siehst diese Anzeige basierend auf Ihrer Navigation auf unserer Website und den Suchkriterien, die du verwendet hast.
Weitere Energiedaten
Heizungsart
Fußbodenheizung
Details
Objektbeschreibung
Kurzbeschreibung
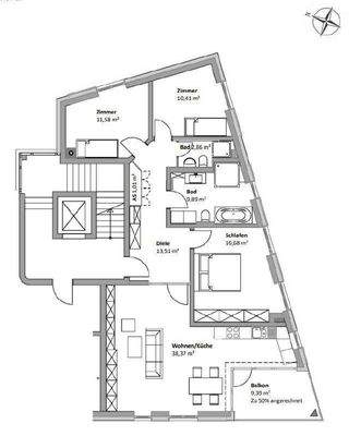
4 Zimmerwohnung mit Balkon zum Kauf | Erstbezug | PKW Stellplatz
Objekt
Zum Verkauf steht eine moderne ca. 109 m² große Vierzimmerwohnung mit Balkon im 1. Obergeschoss eines geplanten dreigeschossigen Mehrfamilienhauses mit insgesamt sechs Wohneinheiten. Das Neubauprojekt entsteht auf einem ca...
Ausstattung
* jede Wohnung verfügt über einen Balkon oder Terrasse
* Wäschetrockenraum im Dachgeschoss
* Aufzug
* Fahrradabstellhaus und Sitzecke auf dem Grundstück
* Abstellraum für jede Wohnung im Dachgeschoss
* Tageslichtbäder mit Wanne und Dusche
Preisinformation
1 Stellplatz, Kaufpreis: 13.000,00 EUR
Soll-Mieteinnahmen pro Jahr: 16.500,00 EUR
Weitere Informationen
Sonstiges
Heizungsart: Fußbodenheizung
Der Energieausweis befindet sich in Erstellung.
Hinweis: Fehlende Angaben zum Energieausweis gemäß Energiesparverordnung 2014 ( EnEV ) begründen sich durch Nichtangabepflicht bei Denkmalschutzobjekten, Grundstücken, nichtbeheizbaren Immobilien oder wurden bisher trotz...
Anbieter der Immobilie
DER IMMO TIP Vermittlung von Immobilien GmbH
Semperstr. 1, 01069 Dresden
Online-ID: 2mbsw52
Referenznummer: 66920
Finde Angebote wie dieses
Hier geht es zu unserem Impressum, den Allgemeinen Geschäftsbedingungen, den Hinweisen zum Datenschutz und nutzungsbasierter Online-Werbung.