
iad Deutschland GmbH
Herr Michael Bauer
004 ···
Nr. anzeigenPreise & Kosten
Provision für Käufer
2,38% inkl. MwSt. inkl. MwSt.
Lage
Sellstedt liegt in der Gemeinde Schiffdorf und zählt zu den Wohnlagen, die Ruhe und Natur mit hervorragender Erreichbarkeit verbinden. Die Entfernung nach Bremerhaven beträgt nur rund 10 km Luftlinie, die Autobahn A27 ist in etwa 7 km erreicht. Damit sind alle wesentlichen Ziele schnell erreichbar:
Bremerhaven: 10-15...
Das Haus
Kategorie
Einfamilienhaus
Baujahr
1998
Bezug
nach Vereinbarung
Energie & Heizung
Warum sehe ich diese Anzeige? – Du siehst diese Anzeige basierend auf Ihrer Navigation auf unserer Website und den Suchkriterien, die du verwendet hast.
Energieausweistyp
Bedarfsausweis
Gebäudetyp
Wohngebäude
Baujahr laut Energieausweis
1998
Wesentliche Energieträger
OEL
Gültigkeit
bis 20.10.2028
Effizienzklasse
E
Endenergiebedarf
150,50 kWh/(m²·a)
Weitere Energiedaten
Energieträger
Öl
Heizungsart
Zentralheizung
Details
Objektbeschreibung
Ländlich leben. Stadtnah genießen. Ein junges Zuhause mit Ruhe & Raum.
Dieses Zuhause aus den späten 90ern vereint zwei Lebenswelten, die sonst selten zusammenfinden: Ruhe, Natur und Gestaltungsfreiheit - und gleichzeitig kurze Wege zu allem, was den Alltag angenehm und flexibel macht.
Mit rund 173 m²...
Ausstattung
· Einfamilienhaus, Baujahr 1997/1998
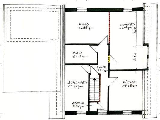
· Ca. 173 m² Wohnfläche (EG ca. 94 m² / DG ca. 79 m²)
· Flexible Nutzung: Einfamilien-, Zweifamilien- oder Mehrgenerationenhaus
· 736 m² Grundstück, dreiseitig blickgeschützt
· Großzügiger Wohn-/Essbereich mit offener Küche
· Einbauküche im Kaufpreis enthalten (inkl...
Preisinformation
1 Carportplatz
Weitere Informationen
Sonstiges
Hinweis zur Preisgestaltung
Der ausgewiesene Angebotspreis von 365.000 € (inkl. Einbauküche) versteht sich als flexible Verhandlungsbasis. Die Eigentümerin strebt eine zeitnahe und unkomplizierte Vermittlung an und ist daher bereit, preislich entgegenzukommen, sofern ein Kaufangebot zu den Rahmenbedingungen...
Anbieter der Immobilie
iad Deutschland GmbH
Schleusenstraße 15-17, 60327 Frankfurt am Main
Online-ID: 2mbun5e
Referenznummer: iad-3718
Finde Angebote wie dieses
Hier geht es zu unserem Impressum, den Allgemeinen Geschäftsbedingungen, den Hinweisen zum Datenschutz und nutzungsbasierter Online-Werbung.