

IFC Immobiliengesellschaft mbH
Herr Paul-Ludwig Blümel
034 ···
Nr. anzeigenPreise & Kosten
Provision für Käufer
3,5 % zzgl. MwSt.
Das Haus
Kategorie
Villa
Baujahr
1938
Energie & Heizung
Warum sehe ich diese Anzeige? – Du siehst diese Anzeige basierend auf Ihrer Navigation auf unserer Website und den Suchkriterien, die du verwendet hast.
Energieausweistyp
Verbrauchsausweis
Gebäudetyp
Wohngebäude
Baujahr laut Energieausweis
1938
Wesentliche Energieträger
ERDGAS_LEICHT
Gültigkeit
bis 18.01.2034
Effizienzklasse
D
Endenergieverbrauch
113,10 kWh/(m²·a)
Details
Objektbeschreibung
Baujahr:
ca. 1938
?
Raumaufteilung:
?
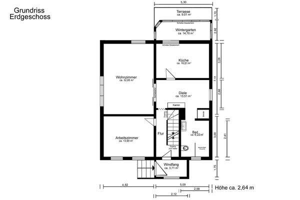
Erdgeschoss:
Wohnzimmer, Arbeitszimmer, Küche, Wintergarten mit Zugang zur
Terrasse, Bad, Diele, Windfang, Flur
?
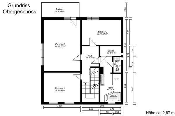
Obergeschoss:
3 Zimmer, Bad mit Sauna und separatem WC
?
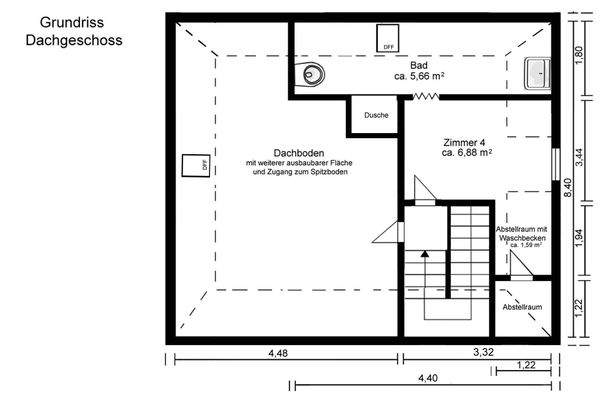
Dachgeschoss:
Zimmer, Bad, 2 Abstellkammern, weitere ausbaubare Fläche mit...
Ausstattung
Sanierung
?
Dach:
ca. 2015 - gedämmt und mit Biberschwanz (anthrazit) gedeckt
?
Fassade:
ca. 2015 - geputzt und gestrichen
Fenster:
ca. 2000 - Kunststoff innen weiß, außen braun teilweise mit Jalousien
DG: zusätzlich Velux-Dachflächenfenster
?
Türen:
EG: Holztüren teilweise mit...
Weitere Informationen
Stichworte
Anzahl der Schlafzimmer: 5, Anzahl der Badezimmer: 4, Anzahl der separaten WCs: 1, Anzahl Balkone: 1, Anzahl Terrassen: 1
Anbieter der Immobilie

Online-ID: 2mbx658
Referenznummer: 2022
Finde Angebote wie dieses
Hier geht es zu unserem Impressum, den Allgemeinen Geschäftsbedingungen, den Hinweisen zum Datenschutz und nutzungsbasierter Online-Werbung.