
Antaris Immobilien GmbH
Frau Iris Thorwirth
+49 ···
Nr. anzeigenPreise & Kosten
Provision für Käufer
3,57 % der Kaufpreissumme inkl. MwSt. vom Käufer
Lage
Die altehrwürdige Residenzstadt Gotha, am Nordrand des Thüringer Waldes, ist das Wirtschafts- und Verwaltungszentrum des Landkreises. Im 12. Jahrhundert erhielt Gotha das Stadtrecht und entwickelte sich zu einem bedeutenden Wirtschafts-, Kunst- und Kulturstandort. Die Stadt hat heute ca. 47.000 Einwohner, denen ein...
Das Renditeobjekt
Kategorie
Wohn- und Geschäftshaus
Baujahr
1880
Energie & Heizung
Warum sehe ich diese Anzeige? – Du siehst diese Anzeige basierend auf Ihrer Navigation auf unserer Website und den Suchkriterien, die du verwendet hast.
Wärme
Strom
Energieausweistyp
Verbrauchsausweis
Gebäudetyp
Nicht-Wohngebäude
Baujahr laut Energieausweis
2016
Wesentliche Energieträger
Erdgas schwer
Gültigkeit
seit 27.06.2023
Endenergieverbrauch (Wärme)
119,00 kWh/(m²·a) - Warmwasser enthalten
Endenergieverbrauch (Strom)
5,60 kWh/(m²·a) - Warmwasser enthalten
Weitere Energiedaten
Heizungsart
offener Kamin
Details
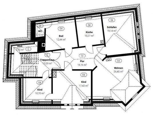
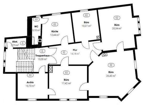
Objektbeschreibung
Zum Verkauf steht ein Wohn- und Geschäftshaus in ansprechender Lage in Gotha, mit Faktor 13!
Das Gebäude wurde ca. 1880 erbaut. Es handelt sich um ein viergeschossiges und voll unterkellertes Wohn- und Geschäftshaus. Die Heizung sowie alle Leitungen, Rohre und Stromzähler wurden ca. 2018 erneuert.
Im EG und im...
Weitere Informationen
Sonstiges
Provision
Der Maklervertrag mit der antaris Immobilien GmbH kommt entweder durch eine schriftliche Vereinbarung oder durch die Inanspruchnahme unserer Maklertätigkeit auf Basis der Anforderung des Objekt-Exposés und der beinhalteten Bestimmungen zustande (siehe auch AGB). Für den Nachweis und/oder die...
Anbieter der Immobilie
Online-ID: 2mbx75r
Referenznummer: P257011/G1
Finde Angebote wie dieses
Hier geht es zu unserem Impressum, den Allgemeinen Geschäftsbedingungen, den Hinweisen zum Datenschutz und nutzungsbasierter Online-Werbung.