
RE/MAX in Regensburg und Ostbayern
Herr Tobias Vilsmeier
004 ···
Nr. anzeigenPreise & Kosten
Provision für Käufer
3,57% inkl. MwSt.
Lage
Im Tal der Lauterach, in direkter Nachbarschaft zu Schmidmühlen, liegt Adertshausen, ein Ortsteil des Marktes Hohenburg im Oberpfälzer Landkreis Amberg-Sulzbach.
So ziemlich zentral zu den regionalen Zentren Amberg, Regensburg, Schwandorf und Neumarkt gelegen, bietet diese Lage sowohl die Ruhe des ländlichen Raums, als...
Das Haus
Kategorie
Einfamilienhaus
Baujahr
1920
Energie & Heizung
Warum sehe ich diese Anzeige? – Du siehst diese Anzeige basierend auf Ihrer Navigation auf unserer Website und den Suchkriterien, die du verwendet hast.
Energieausweistyp
Bedarfsausweis
Gebäudetyp
Wohngebäude
Baujahr laut Energieausweis
1920
Wesentliche Energieträger
OEL
Gültigkeit
bis 22.10.2035
Effizienzklasse
F
Endenergiebedarf
165,80 kWh/(m²·a)
Weitere Energiedaten
Energieträger
Öl
Details
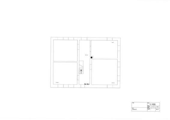
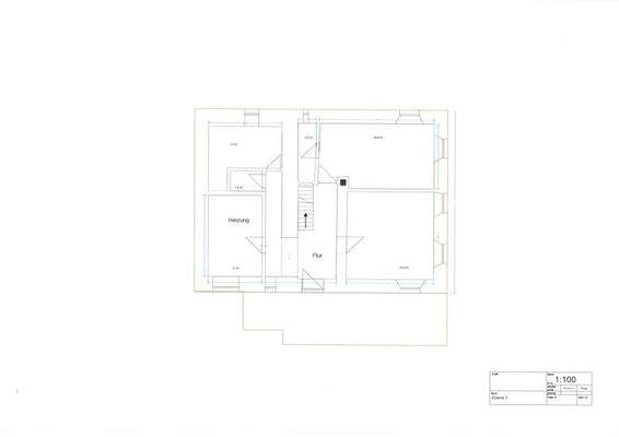
Objektbeschreibung
Nach einem fleißigen Handwerker wird hier gesucht - oder jemanden, der diese kennt und beauftragt.
Der jetzige Eigentümer hat das Objekt 2021 erworben und bereits damit begonnen, das Haus zu renovieren und nutzbar zu machen.
Aktuell durchaus bewohnbar, sind doch schon einige grundlegende Arbeiten durchgeführt...
Ausstattung
Das genaue Baujahr des Hauses ist nicht bekannt, es wurde laut Eigentümer ca. 1920 erbaut.
- Im Umbau befindliches Objekt
- Elektroinstallationen durchgeführt
- Wasserleitungen erneuert
- Neue Fenster, doppelverglast, teilweise dreifachverglast
- Öl-Brennwert-Heizung von 2021
- Bad...
Weitere Informationen
Sonstiges
Bitte senden Sie uns bei Interesse eine Anfrage per Mail (Button: Anbieter kontaktieren, Mail, etc.), in der Sie ihren vollständigen Namen, Adresse und Telefonnummer angeben.
Bei Erwerb verpflichtet sich der Käufer an RE/MAX in Regensburg ,Tobias Vilsmeier, eine Maklerprovision in Höhe von 3,57% inkl. MwSt...
Anbieter der Immobilie
Online-ID: 2mbxw5a
Referenznummer: 1041-06737-2431
Finde Angebote wie dieses
Hier geht es zu unserem Impressum, den Allgemeinen Geschäftsbedingungen, den Hinweisen zum Datenschutz und nutzungsbasierter Online-Werbung.