Ingrid Voss Immobilien

Frau Ingrid Voss

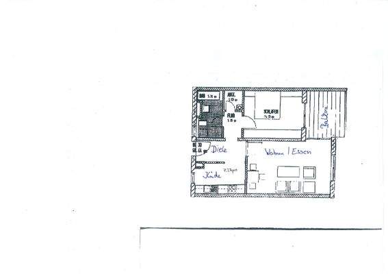
Schöne 2-Zimmer-Wohnung mit großem Balkon in gepflegter Wohnanlage

€ 760
Kaltmiete zzgl. NK
62 m²
Wohnfläche ca.
2
Zimmer

Der Anbieter dieses Objekts hat gegenüber der AVIV Germany GmbH als Betreiber dieses Online-Marktplatzes erklärt, nicht als Unternehmer im Sinne des § 1 KSchG zu handeln. Die im Verbraucherschutzrecht der Union verankerten Verbraucherrechte (insbesondere Informationspflichten und Rücktritts- bzw. Widerrufsrechte) finden auf den Vertrag zwischen dem Anbieter des Objekts und Ihnen (dem Interessenten) keine Anwendung.

Gewerblicher Anbieter

Der Anbieter dieses Objekts hat gegenüber der AVIV Germany GmbH als Betreiber dieses Online-Marktplatzes erklärt, als Unternehmer im Sinne des § 1 KSchG zu handeln.

AdresseHeinrich-Kirchner-Str. 24 - 1.OG
91056 Erlangen 
(Büchenbach)
Auf Karte ansehen

Preise & Kosten

Kaltmiete € 760 Nebenkosten € 220 Heizkosten in Nebenkosten enthalten Warmmiete € 980

Kaution

1.520,00

Lage

Ruhige Lage - gute Busverbindungen zur Innenstadt - Fahrradbereich in die Innenstadt

Die Wohnung

Wohnungslage

1. Geschoss

Bezug

01.02./01.03.2026

  • Bad mit Fenster und Wanne
  • Balkon
  • Ausblick: Fernblick
  • Einbauküche
  • Böden: Fliesenboden
  • Fenster: Kunststofffenster
  • Zustand: gepflegt
  • Weitere Räume: Kelleranteil, Wasch-Trockenraum

Wohnanlage

  • Baujahr: 1994
  • Personenaufzug
  • 1 Stellplatz: Tiefgarage
  • Serviceleistungen: Reinigungsservice

Energie & Heizung

A+
A
B
C
D
E
F
G
H
0 25 50 75 100 125 150 175 200 225 250 +

Energieausweistyp

Verbrauchsausweis

Gebäudetyp

Wohngebäude

Baujahr laut Energieausweis

1994

Wesentliche Energieträger

Gas

Gültigkeit

30.07.2018 bis 30.07.2028

Endenergieverbrauch

100,00 kWh/(m²·a) - Warmwasser enthalten

Weitere Energiedaten

Energieträger

Gas

Heizungsart

Zentralheizung

Details

Objektbeschreibung

Schöne 2-Zimmer-Wohnung mit geräumigen Balkon im 1.OG einer gepflegten Wohnanlage in Erlangen-Büchenbach

- Wohn-/ Essbereich und Schlafzimmer mit Korkboden
- Küche m. EBK inkl. E-Herd, Dunstabzugshaube und Kühlschrank
- Wannenbad mit WC, WB, WMA - Fenster vorhanden
- Abstellraum
- Aufzug vorhanden
-...

Mehr anzeigen

Preisinformation

220,--

Weitere Informationen

Kaution
1.520,00

Kfz-Stellplatz
1 TGA-Stellplatz inkl.

Sonstiges
Nur an Single/ Paar - keine Haustiere - nur Nichtraucher- keine Studenten

Heizungsart
Gaszentralheizung

Stichworte
Versorgung: Städtische Wasserversorgung, Städtische Stromversorgung
Serviceleistungen...

Mehr anzeigen

Anbieter der Immobilie

Diamond Partner

Ingrid Voss Immobilien

im Durchschnitt  4,20  Sterne
(bei 35 Bewertungen)

Rainsberg 18, 91086 Aurachtal

user

Frau Ingrid Voss

Dein Ansprechpartner

Anbieter-Website Anbieter-Impressum

Online-ID: 2mbyj5g

Referenznummer: WII1477

Finde Angebote wie dieses

imageimageimage

Hier geht es zu unserem Impressum, den Allgemeinen Geschäftsbedingungen, den Hinweisen zum Datenschutz und nutzungsbasierter Online-Werbung.