

Volksbank Dreiländereck eG
Frau Ines Hultsch
+49 ···
Nr. anzeigenPreise & Kosten
Provision für Käufer
3,57 % inkl. MwSt.
Lage
Ihr neues Zuhause liegt im gewachsenen Dorfkern von Rümmingen. Die Gemeinde befindet sich im südlichen Markgräflerland und gehört zum Gemeindeverband Vorderes Kandertal, ca. 5 km von Lörrach und ca. 15 km von Basel / Schweiz entfernt. Hier wohnen rd. 2.000 Einwohner, eingebettet in Wald, Wiesen und Felder, die zum Wandern und...
Die Wohnung
Wohnungslage
1. Geschoss
Bezug
01.03.2026
Derzeitige Nutzung
vermietet
Wohnanlage
Energie & Heizung
Warum sehe ich diese Anzeige? – Du siehst diese Anzeige basierend auf Ihrer Navigation auf unserer Website und den Suchkriterien, die du verwendet hast.
Energieausweistyp
Verbrauchsausweis
Gebäudetyp
Wohngebäude
Baujahr laut Energieausweis
2000
Wesentliche Energieträger
GAS
Gültigkeit
bis 19.01.2035
Effizienzklasse
C
Endenergieverbrauch
96,30 kWh/(m²·a)
Weitere Energiedaten
Energieträger
Gas
Heizungsart
Zentralheizung
Details
Objektbeschreibung
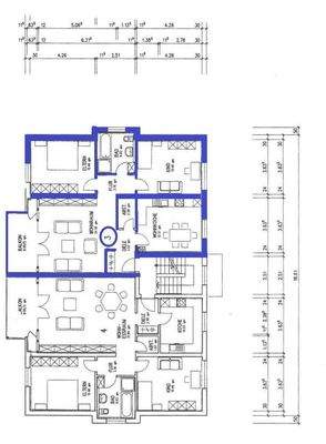
Die zum Verkauf stehende 3-Zimmer-Eigentumswohnung Nr. 3 befindet sich im 1. Obergeschoss einer in 2000 erstellten Eigentumswohnanlage, bestehend aus einem Neubau und sanierten Altbau mit insgesamt 8 Wohnungen.
Die lichtdurchflutete Wohnung verfügt über einen großzügigen Grundriss mit einer Wohnfläche von ca. 90 m²...
Ausstattung
Böden: Buche-Parkett, Fliesen
Fenster: Kunststofffenster weiß mit Isolierglas und Rollläden
Wände: vorwiegend Raufasertapete weiß gestrichen
Türen: Türblätter und Zargen in weiß
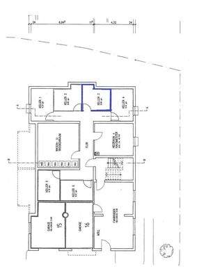
Keller Nr. 3
Wasch- /Trockenraum
Hausverwaltung und Treppenhausreinigung vorhanden,
Garten- und Hausmeisterarbeiten werden von...
Preisinformation
1 Stellplatz
1 Tiefgaragenstellplatz
Weitere Informationen
Stichworte
Anzahl der Schlafzimmer: 2, Anzahl der Badezimmer: 1, Anzahl Balkone: 1, Distanz zum Kindergarten: 0.20, Distanz zur Grundschule: 0.25, Distanz zum Gymnasium: 5.50, Distanz zur Autobahn: 1.40, Distanz vom Zentrum: 5.00
Anbieter der Immobilie

Online-ID: 2mc2j5q
Referenznummer: VB3-2407
Finde Angebote wie dieses
Hier geht es zu unserem Impressum, den Allgemeinen Geschäftsbedingungen, den Hinweisen zum Datenschutz und nutzungsbasierter Online-Werbung.