
Crozilla.com
Biliskov real estate
+38 ···
Nr. anzeigenPreise & Kosten
Provision für Käufer
Bitte beachte, das Angebot kann bei Vertragsabschluss die Zahlung einer Provision beinhalten. Weitere Informationen erhältst Du vom Anbieter.
Die Wohnung
Wohnungslage
2. Geschoss
Wohnanlage
Details
Objektbeschreibung
www.biliskov.com ID-14298
Top-Lage, nahe dem British Square,
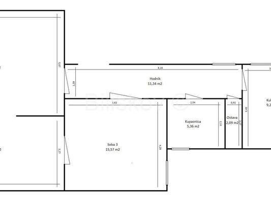
Eine schöne, komfortable Vierzimmerwohnung von 112 m2 im zweiten Stock eines Gebäudes aus dem Jahr 1922.
Das Gebäude verfügt über keinen Aufzug.
Die Wohnung wurde 2018 komplett renoviert.
Die Wohnung besteht aus einem Wohnzimmer, einer Küche, drei...
Weitere Informationen
Stichworte
Anzahl der Badezimmer: 1, 1 Etagen
Anbieter der Immobilie
Crozilla.com
Nova cesta 60, 10000 ZAGREB
Online-ID: 2mc2u5q
Referenznummer: 18607459_1
Finde Angebote wie dieses
Hier geht es zu unserem Impressum, den Allgemeinen Geschäftsbedingungen, den Hinweisen zum Datenschutz und nutzungsbasierter Online-Werbung.