
BEG-Immobilien GmbH
Herr Cornelius Schmid
004 ···
Nr. anzeigenPreise & Kosten
Provision für Käufer
3,57% inkl. MwSt. vom Kaufpreis. Die Provision ist verdient und mit notarieller Beurkundung fällig.
Abschreibung/Anlage
Denkmalschutz-Afa
Lage
Willkommen in Schwäbisch Hall, einer charmanten Stadt, die Geschichte und Moderne gekonnt miteinander verbindet! Dein neues Zuhause befindet sich mitten in dieser malerischen Kulisse, umgeben von ruhigen Straßen und einer freundlichen Nachbarschaft. Das Einfamilienhaus liegt in einem sanft geschwungenen Wohngebiet und bietet...
Die Wohnung
Wohnungslage
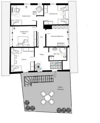
Dachgeschoss
Wohnanlage
Energie & Heizung
Warum sehe ich diese Anzeige? – Du siehst diese Anzeige basierend auf Ihrer Navigation auf unserer Website und den Suchkriterien, die du verwendet hast.
Energieausweis: für diesen Gebäudetyp nicht notwendig
Details
Objektbeschreibung
Entdecken Sie diese großzügige Dachgeschosswohnung im Herzen von Schwäbisch Hall - einer Stadt, die für ihr malerisches Stadtbild und ihre reiche Geschichte bekannt ist. Die Wohnung befindet sich in einem charaktervollen Gebäude aus dem Jahr 1738 und vereint den historischen Charme des Fachwerks mit modernen Wohnstandards. So...
Ausstattung
*UMBAUPROJEKT*: Das aktuelle Einfamilienhaus auf mehreren Etagen soll in drei eigenständige Eigentumswohnungen umgebaut werden. Seien Sie ein Teil und gestalten Sie die künftige Nutzung dieser traditionsreichen Immobilie aktiv mit.
- Baujahr ursprünglich 1738
- Wärmepumpe
- Aufsparrendämmung inkl...
Weitere Informationen
Stichworte
Nutzfläche: 32,98 m², Gesamtfläche: 139,24 m², Grundstücksfläche: 373,00 m², Anzahl der Badezimmer: 1
Sonstiges/Wohnen: Dachboden
Anbieter der Immobilie
BEG-Immobilien GmbH
Blockgasse 3, 74523 Schwäbisch Hall
Online-ID: 2mc395k
Referenznummer: 2523
Finde Angebote wie dieses
Hier geht es zu unserem Impressum, den Allgemeinen Geschäftsbedingungen, den Hinweisen zum Datenschutz und nutzungsbasierter Online-Werbung.