

J. Matschke Immobilien
Herr Johannes Matschke
+49 ···
Nr. anzeigenPreise & Kosten
Provision für Käufer
provisionsfrei
Lage
Eingebettet in die Landschaft des Chiemgaus bietet die Eigentumswohnung eine herrliche Umgebung in unmittelbarer Nähe zu den bayerischen Alpen. Die Region ist bekannt für ihre zahlreichen Wander- und Radwege, sowie den nahegelegenen Chiemsee, vielfältige Freizeitmöglichkeiten wie Skifahren, Golfen, Segeln und...
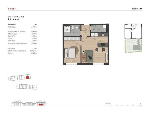
Die Wohnung
Kategorie
Terrassenwohnung
Wohnanlage
Energie & Heizung
Warum sehe ich diese Anzeige? – Du siehst diese Anzeige basierend auf Ihrer Navigation auf unserer Website und den Suchkriterien, die du verwendet hast.
Energieausweistyp
Bedarfsausweis
Gebäudetyp
Wohngebäude
Wesentliche Energieträger
Luftwärmepumpe
Gültigkeit
25.08.2025 bis 25.08.2035
Endenergiebedarf
12,00 kWh/(m²·a)
Weitere Energiedaten
Heizungsart
Luft-/Wasser-Wärmepumpe
Details
Objektbeschreibung
Exklusive Eigentumswohnung in Bad Endorf mit höchster Energieeffizienz und sorgenfreiem Hausverwaltungsmanagement
Attraktiver Standort im Zentrum Bad Endorfs
Wenige Gehminuten zu:
?? Bahnhof - 45 Minuten nach München
?? Klinik
?? Therme
?? Einkaufsmöglichkeiten
Highlights:
?? Degressive...
Ausstattung
* Holz-Hybridbauweise (Massiv Brettsperrholzwände in Kombination mit Stahlbetondecken)
* Tiefgarage
* Terrasse, Balkon und Garten
* Luft-Wasser-Wärmepumpe
* Fußbodenheizung mit elektronischer Einzelraumregelung
* Landhausdiele (Parkett)
* Hochwertige bodentiefe Aluminiumfenster (3-fach-Verglasung)
*...
Weitere Informationen
Sonstiges
Für weitere Informationen oder einen Besichtigungstermin stehen wir Ihnen gerne zur Verfügung oder senden Ihnen auf Anfrage ein ausführliches Exposé mit Grundrissplänen und weiteren Fotos zu.
Bitte haben Sie Verständnis, dass wir nur Anfragen mit vollständig angegebener Adresse und Telefonnummer bearbeiten...
Anbieter der Immobilie
J. Matschke Immobilien
Bahnhofstr. 16a, 83278 Traunstein

Online-ID: 2mc3e5c
Referenznummer: 6181
Finde Angebote wie dieses
Hier geht es zu unserem Impressum, den Allgemeinen Geschäftsbedingungen, den Hinweisen zum Datenschutz und nutzungsbasierter Online-Werbung.