Popp Immobilien

Frau Gudrun Vollath-Popp

Gepflegte DG-Maisonette mit großer Dachterrasse im neuen NEUTORVIERTEL

€ 1.199,13
Gesamtmiete inkl. BK
96 m²
Wohnfläche ca.
2
Zimmer

Der Anbieter dieses Objekts hat gegenüber der AVIV Germany GmbH als Betreiber dieses Online-Marktplatzes erklärt, nicht als Unternehmer im Sinne des § 1 KSchG zu handeln. Die im Verbraucherschutzrecht der Union verankerten Verbraucherrechte (insbesondere Informationspflichten und Rücktritts- bzw. Widerrufsrechte) finden auf den Vertrag zwischen dem Anbieter des Objekts und Ihnen (dem Interessenten) keine Anwendung.

Gewerblicher Anbieter

Der Anbieter dieses Objekts hat gegenüber der AVIV Germany GmbH als Betreiber dieses Online-Marktplatzes erklärt, als Unternehmer im Sinne des § 1 KSchG zu handeln.

AdresseKaiserfeldgasse 22
8010 Graz 
(Innere Stadt)
Auf Karte ansehen

Preise & Kosten

Gesamtmiete

inkl. Betriebskosten

€ 1.199,13
Nettokaltmiete € 895 Betriebskosten € 195,12

Kaution

3900

Provision für Mieter

Gemäß Erstauftraggeberprinzip bezahlt der Abgeber die Provision.

Lage

Die Wohnung

Wohnungslage

Dachgeschoss

Bezug

nach Vereinbarung

  • Bad mit Dusche
  • Terrasse
  • Einbauküche
  • Böden: Fliesenboden, Parkett

Wohnanlage

  • Personenaufzug

Energie & Heizung

Heizwärmebedarf (HWB)

B

46,68 kWh/(m²·a)

Gesamtenergieeffizienz (fGEE)

C

0,00

Weitere Energiedaten

Energieträger

Fernwärme

Heizungsart

Zentralheizung

Details

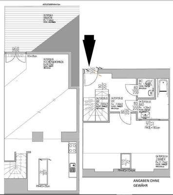
Objektbeschreibung

Genießen Sie den herrlichen Blick - über die Dächer der schönen Altstadt - zum Schlossberg.
Die Wohnung befindet sich in der Kaiserfeldgasse 22 in einem schönen Altbauhaus im 4. Und 5. OG. Lift in Halbstock vorhanden.

Raumaufteilung:
Eingangsebene: Vorraum, Bad, WC, Abstellraum, sehr großes Schlafzimmer...

Mehr anzeigen

Preisinformation

Nettokaltmiete: 895,00 EUR

Weitere Informationen

Stichworte
Anzahl der Badezimmer: 1, Anzahl der separaten WCs: 1, Anzahl Terrassen: 1, Balkon-Terrassen-Fläche: 18,00 m², Bundesland: Steiermark, 2 Etagen

Anbieter der Immobilie

Partner

Popp Immobilien

im Durchschnitt  3,80  Sterne
(bei 3 Bewertungen)

Kaiserfeldgasse 20, 8010 GRAZ

user

Frau Gudrun Vollath-Popp

Dein Ansprechpartner

Anbieter-Website Anbieter-Profil Anbieter-Impressum

Online-ID: 2mc3y5q

Referenznummer: OBGC20251216134731799e0bc25154e

Finde Angebote wie dieses

imageimageimage

Hier geht es zu unserem Impressum, den Allgemeinen Geschäftsbedingungen, den Hinweisen zum Datenschutz und nutzungsbasierter Online-Werbung.