
ÖRAG Immobilien Vermittlung GmbH
Herr Swjatoslaw Sumann
004 ···
Nr. anzeigenPreise & Kosten
inkl. Betriebskosten
Kaution
6 BMM zzgl. 20% USt.
Provision für Mieter
3 BMM zzgl. 20 % USt. inkl. MwSt.
Warum sehe ich diese Anzeige? – Du siehst diese Anzeige basierend auf Ihrer Navigation auf unserer Website und den Suchkriterien, die du verwendet hast.
Lage
Das Geschäftslokal befindet sich in einer belebten Straße im Bezirk Jakomini. In unmittelbarer Nähe liegen der Jakominiplatz und der Dietrichsteinplatz, wichtige Verkehrsknotenpunkte und belebte Geschäftsviertel. Die ausgezeichnete Anbindung an den öffentlichen Nahverkehr (Straßenbahnen und Busse) sowie die Nähe zu...
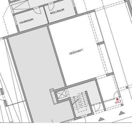
Die Ladenfläche
Kategorie
Laden
Baujahr
2002
Bezug
sofort
Erdgeschoss
Energie & Heizung
Warum sehe ich diese Anzeige? – Du siehst diese Anzeige basierend auf Ihrer Navigation auf unserer Website und den Suchkriterien, die du verwendet hast.
Heizwärmebedarf (HWB)
59,10 kWh/(m²·a)
Gesamtenergieeffizienz (fGEE)
1,23
Weitere Energiedaten
Heizungsart
Zentralheizung
Details
Objektbeschreibung
Kurzbeschreibung
Attraktive Geschäftsfläche, zentrale Lage - für Retail od. Dienstleistungsbranche - zur Miete
Objekt
Attraktive Geschäftsfläche, zentrale Lage - für Retail od. Dienstleistungsbranche - zur Miete
In erstklassiger Lage in Graz erwartet Sie diese ca. 89,71 m² große Geschäftsfläche im...
Ausstattung
Ausstattung & Beschreibung:
- Open Space Geschäftsfläche + Büroraum oder Abstellraum
- WC
- große, repräsentative Glasfronten
- öffentliche Parkplätze + optional TG -Plätze anmietbar
- Bodenbelag: Parkett
- ausgezeichnete Anbindung an den öffentlichen Nahverkehr
- in unmittelbarer Nähe liegen der...
Preisinformation
Nettokaltmiete: 897,10 EUR
Weitere Informationen
Sonstiges
Wir sind eine Tochtergesellschaft der ÖRAG-Österreichische Realitäten AG, Wien, genannt ÖRAG, und es besteht daher unter Umständen ein sonstiges wirtschaftliches Naheverhältnis im Sinne des Maklergesetzes zur ÖRAG und ihren anderen Tochtergesellschaften in Österreich. Das Naheverhältnis zur ÖRAG ergibt sich zB...
Anbieter der Immobilie
Online-ID: 2mc495y
Referenznummer: 109251488
Finde Angebote wie dieses
Hier geht es zu unserem Impressum, den Allgemeinen Geschäftsbedingungen, den Hinweisen zum Datenschutz und nutzungsbasierter Online-Werbung.