
GARANT Immobilien AG
Büro Dornstadt
073 ···
Nr. anzeigenPreise & Kosten
Provision für Käufer
3,57 % (inkl. MwSt.) inkl. MwSt.
Die Maklercourtage für den Käufer beträgt 3 % aus dem Kaufpreis zuzüglich der gesetzlichen MwSt., somit gesamt 3,57 %.
Lage
Dunstelkingen ist ein Ortsteil der Gemeinde Dischingen im Landkreis Heidenheim. Bis 1974 war Dunstelkingen eine eigenständige Gemeinde. Der Ort liegt nordöstlich von Dischingen, auf der Ries-Alb, einer Hochfläche der Ost-Alb etwa 20 km von der Kreisstadt Heidenheim entfernt.
Dunstelkingen hat ein reges Vereinsleben...
Das Haus
Kategorie
Einfamilienhaus
Baujahr
2022
Bezug
sofort
Energie & Heizung
Warum sehe ich diese Anzeige? – Du siehst diese Anzeige basierend auf Ihrer Navigation auf unserer Website und den Suchkriterien, die du verwendet hast.
Energieausweistyp
Bedarfsausweis
Gebäudetyp
Wohngebäude
Baujahr laut Energieausweis
2022
Wesentliche Energieträger
Strom
Gültigkeit
seit 27.03.2024
Effizienzklasse
A+
Endenergiebedarf
20,00 kWh/(m²·a)
Weitere Energiedaten
Energieträger
Elektro
Heizungsart
Fußbodenheizung
Details
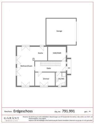
Objektbeschreibung
Dieses noch sehr junge Haus auf einem bereits angelegten Grundstück ist ideal für eine Familie mit extra viel Raumbedarf.
Beim Betreten werden Sie gleich staunen, denn sowohl im Erdgeschoss als auch im Obergeschoss erwartet Sie eine Raumhöhe von 2,80 m.
Der perfekt durchdachte Grundriss lässt eine vielseitige Nutzung...
Ausstattung
EG: geräumige Diele und besonders großer Hauswirtschaftsraum
mit Morgensonne, Büro und Gästebad voll südlich, offener
Wohn-/Essbereich mit bodentiefen Fenstern nach Süden,
Westen und Norden, offene Küche mit zusätzlicher nördlicher
Terrassentür
OG: Elternschlafzimmer mit...
Weitere Informationen
Sonstiges
Energiebedarfsausweis
Energiekennwert: 20,00 kWh/(qm*a)
Energieeffizienz: Klasse A+ (<30)
Heizung: Fußbodenheizung mit Strom
Baujahr laut Energieausweis: 2022
2 x Garage, 2 x Stellplatz außen
* Raumhöhe 2,80 m
* innenliegender Kamin
* hochwertige Einbauküche
*...
Anbieter der Immobilie
Online-ID: 2mc4q5y
Referenznummer: 791.991
Finde Angebote wie dieses
Hier geht es zu unserem Impressum, den Allgemeinen Geschäftsbedingungen, den Hinweisen zum Datenschutz und nutzungsbasierter Online-Werbung.