

Aengevelt Immobilien GmbH & Co KG
Herr Stephan Gödeke
+49 ···
Nr. anzeigenPreise & Kosten
Provision für Mieter
Weitere Informationen siehe Provisionshinweis.
Warum sehe ich diese Anzeige? – Du siehst diese Anzeige basierend auf Ihrer Navigation auf unserer Website und den Suchkriterien, die du verwendet hast.
Lage
Die Zeil 127 befindet sich in absolut zentraler Innenstadtlage und damit in einer der belebtesten und meistfrequentierten Straßen Frankfurts. Die Anbindung an den öffentlichen Nahverkehr ist hervorragend: Hauptwache und Konstablerwache mit ihren zahlreichen U- und S-Bahnlinien liegen nur wenige Schritte entfernt und bieten...
Büro-/Praxisfläche
Kategorie
Bürofläche
Baujahr
1960
Bezug
nach Vereinbarung
Energie & Heizung
Warum sehe ich diese Anzeige? – Du siehst diese Anzeige basierend auf Ihrer Navigation auf unserer Website und den Suchkriterien, die du verwendet hast.
Wärme
Strom
Energieausweistyp
Verbrauchsausweis
Gebäudetyp
Nicht-Wohngebäude
Baujahr laut Energieausweis
1960
Wesentliche Energieträger
Gas
Endenergieverbrauch (Wärme)
150,00 kWh/(m²·a)
Endenergieverbrauch (Strom)
10,00 kWh/(m²·a)
Weitere Energiedaten
Energieträger
Gas
Heizungsart
Zentralheizung
Details
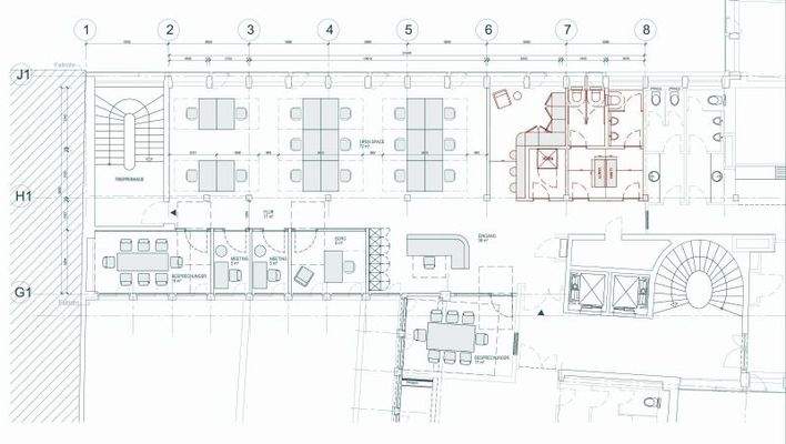
Objektbeschreibung
Die im Jahr 2000 modernisierte Immobilie auf der Zeil präsentiert sich als zeitgemäße Büroadresse und ist dank zweier Personenaufzüge vollständig barrierefrei erschlossen. Das fünfgeschossige Gebäude bietet moderne, flexibel nutzbare Büroflächen in einer der lebendigsten und zentralsten Lagen Frankfurts. Die Kombination aus...
Ausstattung
Die Fläche ermöglicht eine flexible Bürogestaltung und kann sowohl als Einzel-, Kombi- als auch als Großraumbüro umgesetzt werden. Ein außenliegender Sonnenschutz sorgt für eine angenehme Licht- und Wärmeregulierung, während die Umluftkühlung in Kombination mit der Gas-Heizung ein ausgewogenes Raumklima schafft. Die...
Weitere Informationen
Provisionshinweis
provisionspflichtig
Im Anmietungsfall beträgt die Maklerprovision bei Mietverträgen von bis zu 5 Jahren Laufzeit 3,0 Netto-Monatsmieten, bei einer Vertragsdauer von über 5 Jahren 4,0 Netto-Monatsmieten, jeweils zzgl. gesetzlicher Mehrwertsteuer.
Die Provision ist verdient / fällig bei...
Anbieter der Immobilie
Aengevelt Immobilien GmbH & Co KG
Kennedydamm 55/Ross-Strasse, 40476 Düsseldorf

Online-ID: 2mc4v5h
Referenznummer: 36845
Finde Angebote wie dieses
Hier geht es zu unserem Impressum, den Allgemeinen Geschäftsbedingungen, den Hinweisen zum Datenschutz und nutzungsbasierter Online-Werbung.