Living Fertighaus GmbH - Jessica N‘Guer

Frau Jessica N'Guer

WOHNEN AUF EINER EBENE - DEIN TRAUMHAUS VON LIVING HAUS INKL: GRUNDSTÜCK IN ENSDORF

€ 470.000
Kaufpreis
110 m²
Wohnfläche ca.
4
Zimmer
505 m²
Grundstücksfl. ca.

Der Anbieter dieses Objekts hat gegenüber der AVIV Germany GmbH als Betreiber dieses Online-Marktplatzes erklärt, nicht als Unternehmer im Sinne des § 1 KSchG zu handeln. Die im Verbraucherschutzrecht der Union verankerten Verbraucherrechte (insbesondere Informationspflichten und Rücktritts- bzw. Widerrufsrechte) finden auf den Vertrag zwischen dem Anbieter des Objekts und Ihnen (dem Interessenten) keine Anwendung.

Provisionsfrei
Gewerblicher Anbieter

Der Anbieter dieses Objekts hat gegenüber der AVIV Germany GmbH als Betreiber dieses Online-Marktplatzes erklärt, als Unternehmer im Sinne des § 1 KSchG zu handeln.

AdresseStraße nicht freigegeben
66806 Ensdorf 
Auf Karte ansehen

Preise & Kosten

Kaufpreis € 470.000

Provision für Käufer

provisionsfrei

Lage

Das Grundstück ist verfügbar und im Preis mit einkalkuliert.
*Möglicher Zwischenverkauf nicht ausgeschlossen

Alle Projektierungen sind auf realen zum Verkauf stehenden Bauplätzen/Baulücken projektiert.

Bitte sehen Sie von reinen Grundstücksanfrage ab.

Als Hausverkäuferin trete ich als Vermittlerin auf...

Mehr anzeigen

Das Haus

Kategorie

Einfamilienhaus

  • Gäste-WC
  • Einbauküche

Energie & Heizung

A+
A
B
C
D
E
F
G
H
0 25 50 75 100 125 150 175 200 225 250 +

Energieausweistyp

Bedarfsausweis

Gebäudetyp

Wohngebäude

Effizienzklasse

A+

Endenergiebedarf

18,00 kWh/(m²·a)

Weitere Energiedaten

Haustyp

KfW 55

Details

Objektbeschreibung

Objektbeschreibung

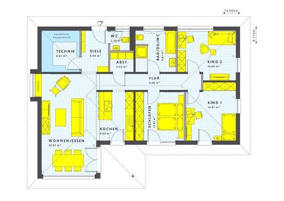
Der Bungalow SOL 110 überzeugt mit einem offenen, großzügigen Grundriss und viel Raum für individuelle Gestaltung.
Der zentrale Wohn- und Essbereich mit offener Küche ist das Herzstück des Hauses - hier treffen sich Familie und Freunde z

Ausum gemeinsamen Leben, Genießen und...

Mehr anzeigen

Ausstattung

Alles auf einer Ebene, Ihr Traumhaus SOL110 von Living Haus

Der Living Haus SOL 110 steht für modernes, komfortables und barrierefreies Wohnen auf einer Ebene. Mit seiner durchdachten Architektur, lichtdurchfluteten Räumen und klaren Linien bietet dieser Bungalow höchsten Wohnkomfort für jedes Alter.

Der SOL 110...

Mehr anzeigen

Weitere Informationen

Sonstiges
Entdecke das sichere Ausbauhaus-Konzept von Living Haus. Konzentriere dich auf das, was dir wichtig ist. Wir kümmern uns um den Rest. Deine Vorteile bei Living Haus:
- 18 Monate Festpreisgarantie
- bei fallenden Baupreisen sinkt auch dein Hauspreis
- 30 Jahre Garantie auf die Grundkonstruktion
-...

Mehr anzeigen

Anbieter der Immobilie

Partner

Living Fertighaus GmbH - Jessica N‘Guer

Am Pauschenbaum 18, 66557 Illingen

user

Frau Jessica N'Guer

Dein Ansprechpartner

Anbieter-Website Anbieter-Profil Anbieter-Impressum

Online-ID: 2mc6l5m

Referenznummer: 30637-6137

Finde Angebote wie dieses

imageimageimage

Hier geht es zu unserem Impressum, den Allgemeinen Geschäftsbedingungen, den Hinweisen zum Datenschutz und nutzungsbasierter Online-Werbung.