

Einfamilienhaus zum Kauf229000 €2.516 €/m²4,5 Zimmer • 91 m² • 237 m² Grundstück
229000 €
2.516 €/m²
4,5 Zimmer • 91 m² • 237 m² Grundstück
Gepflegtes Haus mit Wintergarten in idyllischer Sackgassenlage
Merkmale
- Bezug: nach Absprache
- 237 m² Grundstück
- EinbaukĂĽche
- Kelleranteil
- AuĂźen-Stellplatz
- Gäste-WC
- offener Kamin
- Veranda
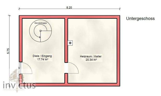
Grundrisse
Grundrisse
1 / 3
Realisiere Dein Projekt
Bausubstanz und Energie
Energieausweis
D
- Baujahr1963
- Zustand der ImmobilieMassivhaus, Gepflegt
- HeizungsartZentralheizung
- EnergieträgerÖl
Preisdetails
Kaufpreis
229000 €
2.516,48 €/m²
Provision für Käufer
4,76%
Weitere Preisinformationen
1 Stellplatz
Geschätzte Gesamtkosten
253.205 €1
Kaufpreis
229.000 €
Kaufnebenkosten
24.205 €
2Notarkosten (1,5%)
3.435 €
Grunderwerbsteuer (5%)
11.450 €
Provision für Käufer (3,57%)
8.175 €
Grundbucheintrag (0,5%)
1.145 €
1Der angezeigte Wert ist eine automatisch berechnete Schätzung von immowelt.
2Bei den Angaben handelt es sich um ortsübliche Werte. Individuelle Kosten können abweichen.
Lage

Tiefenbach, Gundelsheim / Tiefenbach (74831)
Der Anbieter hat die genaue Adresse nicht freigegeben
Weitere Informationen
Weitere Services
Lust auf eine Besichtigung?
Eine Frage zur Immobilie?
Ăśber den Anbieter
invictus Immobilien GmbHMaklerbĂĽro
KilianstraĂźe 4, 74072 Heilbronn
Partnerschaft
Herr Markus HennDein Kontakt
Online-ID: 2mc775v
Referenznummer: 855_MH_Invictus

invictus Immobilien GmbH
Wie zufrieden bist du mit dieser Seite (nicht mit der Immobilie selbst)?

