
Immobilien Nagel GmbH
Frau Amrei Rieso
004 ···
Nr. anzeigenPreise & Kosten
Provision für Käufer
3,57 % inkl. MwSt
Lage
NRW - Kreis Gütersloh - Schloß Holte Stukenbrock - Gewerbepark Senne
Ostwestfalen-Lippe zählt laut der Stockholm School of Economics zu den stärksten Wirtschaftsregionen Europas - ein Industriestandort mit hoher Innovationskraft, stabilen Strukturen und hervorragenden Investitionschancen.
Über 400 Unternehmen...
Das Renditeobjekt
Kategorie
Produktionshalle
Baujahr
2024
Energie & Heizung
Warum sehe ich diese Anzeige? – Du siehst diese Anzeige basierend auf Ihrer Navigation auf unserer Website und den Suchkriterien, die du verwendet hast.
Weitere Energiedaten
Heizungsart
Luft-/Wasser-Wärmepumpe, Zentralheizung
Details
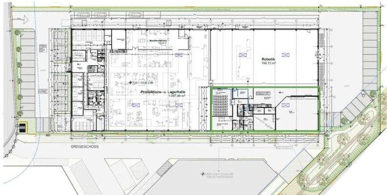
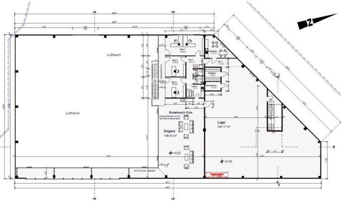
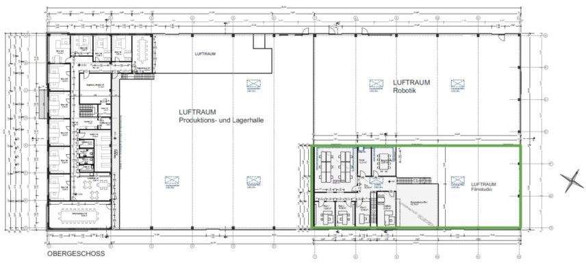
Objektbeschreibung
Der Gewerbepark Senne in Schloss Holte-Stukenbrock bietet eine seltene Gelegenheit für Kapitalanleger: Zwei hochwertig ausgestattete, langfristig vermietete Liegenschaften mit stabilen Erträgen und modernen Nutzungskonzepten.
Die erste Einheit ist an einen etablierten Fahrradhändler vermietet, der seine bisherigen...
Ausstattung
- Neubau nach GEG 2020 EE 40
- KFW Förderkredit vorhanden
- Mietbeginn: Q1 2025
- Laufzeit Mietvertrag: 8, 12 und 13 Jahre + Option
- VPI-Indexierung: 2 Jahre nach Mietbeginn, Schwellenwert 7 %
Technische Ausstattung
- 4 Lichtkuppeln (RWAs, ca. 120x240 cm, mit integrierten RWA-Öffnungen)
-...
Preisinformation
35 Stellplätze
15 Stellplätze
Weitere Informationen
Sonstiges
Für die Richtigkeit und Vollständigkeit des Objekts und der Objektangaben kann keine Gewähr übernommen werden. Irrtum und Zwischenverkauf vorbehalten.
Die Käuferprovision beträgt 3,57% inkl. Mehrwertsteuer und ist vom Käufer auf den notariell beglaubigten Kaufpreis an die Immobilien Nagel GmbH zu...
Anbieter der Immobilie
Immobilien Nagel GmbH
Herforder Str. 53, 32545 Bad Oeynhausen
Online-ID: 2mc8e53
Referenznummer: 00-1265
Finde Angebote wie dieses
Hier geht es zu unserem Impressum, den Allgemeinen Geschäftsbedingungen, den Hinweisen zum Datenschutz und nutzungsbasierter Online-Werbung.