

Next Immobilien
Herr/Frau Henry Gaebel
033 ···
Nr. anzeigenPreise & Kosten
Provision für Käufer
3,57 % (incl. 19 % MwSt.) vom beurkundeten Kaufpreis inkl. MwSt.
Lage
IHR (ZUKÜNFTIGER) WOHNORT
Werder - eine Kleinstadt westlich von Potsdam - ist geprägt von der Havel und ihren Seen: Schwielowsee, Glindower See, Großer Zernsee und Großer Plessower See. Die Havel lädt an vielen Stellen zum Baden und Wassersport, zum Angeln und zur Erholung ein. Unweit des Grundstücks befindet sich ein...
Das Haus
Kategorie
Einfamilienhaus
Baujahr
2000
Energie & Heizung
Warum sehe ich diese Anzeige? – Du siehst diese Anzeige basierend auf Ihrer Navigation auf unserer Website und den Suchkriterien, die du verwendet hast.
Energieausweistyp
Verbrauchsausweis
Gebäudetyp
Wohngebäude
Baujahr laut Energieausweis
2000
Wesentliche Energieträger
Gas
Gültigkeit
seit 25.08.2025
Effizienzklasse
B
Endenergieverbrauch
55,10 kWh/(m²·a) - Warmwasser enthalten
Weitere Energiedaten
Energieträger
Gas
Heizungsart
offener Kamin
Details
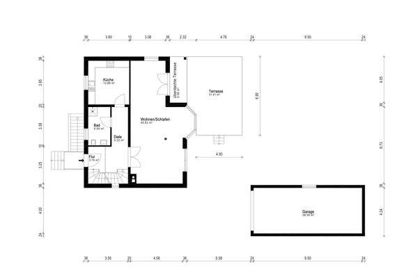
Objektbeschreibung
Sie wollen:
- Wohnen und arbeiten unter einem Dach?
- Naturnah und dennoch mit urbaner Infrastruktur leben?
- Potsdam und Berlin gut und schnell erreichen?
Das sonnige Familienhaus in Werder (Havel) könnte Ihre Lösung sein!
DIE IMMOBILIE AUF EINEN BLICK
- Baujahr: ca. 2000
- Grundstück...
Ausstattung
DER AUSSENBEREICH
Das Grundstück liegt an der Potsdamer Straße und wird über ein elektrisches Schiebetor mit Funkfernbedienung befahren oder durch eine Gartenpforte zu Fuß betreten.
Das rechteckige Grundstück (ca. 803 m²) ist gepflegt und durch eine blickdichte Hecke und einem Zaun an drei Seiten eingefriedet...
Preisinformation
1 Garagenstellplatz
Weitere Informationen
Sonstiges
Wir beantworten Anfragen nur nach Angabe des vollständigen Namen, Adressen und Telefonnummern von Interessenten.
Die in diesem Exposé enthaltenen Angaben beruhen auf den vom Verkäufer bzw. Dritten übermittelten Informationen. Eine Haftung für deren Richtigkeit und Vollständigkeit ist ausgeschlossen; die...
Anbieter der Immobilie
Next Immobilien
Berliner Straße 146, 14467 Potsdam

Online-ID: 2mcce5x
Referenznummer: 494#5ykbFT
Finde Angebote wie dieses
Hier geht es zu unserem Impressum, den Allgemeinen Geschäftsbedingungen, den Hinweisen zum Datenschutz und nutzungsbasierter Online-Werbung.