
RUHR REAL GmbH
Herr Felix Ludwig
+49 ···
Nr. anzeigenPreise & Kosten
Provision für Mieter
provisionsfrei
Warum sehe ich diese Anzeige? – Du siehst diese Anzeige basierend auf Ihrer Navigation auf unserer Website und den Suchkriterien, die du verwendet hast.
Lage
Aachen ist eine Großstadt in Nordrhein-Westfalen an der Landesgrenze zu den Niederlanden und zu Belgien. Aachen verfügt über optimal regionale, als auch überregionale Anbindungen. Die Grenze zu den Niederlanden erreicht man in nur 10 Minuten, die Metropole Rhein-Ruhr ist in unter einer Stunde erreicht. Die Liegenschaft selbst...
Die Industriefläche
Kategorie
Lagerhalle
Bezug
nach Vereinbarung
Energie & Heizung
Warum sehe ich diese Anzeige? – Du siehst diese Anzeige basierend auf Ihrer Navigation auf unserer Website und den Suchkriterien, die du verwendet hast.
Weitere Energiedaten
Energieträger
Gas
Details
Objektbeschreibung
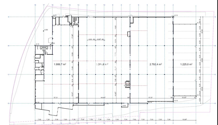
Diese Lager- und Produktionsfläche befindet sich auf einem ca. 15.250 m² großem Grundstück, welchem komplett umzäunt ist. Das Objekt ist freistehend und kann mit bis zu 40t-LKW umfahren werden. Die ca. 9.385 m² Hallenfläche ist in 4 Brandabschnitte unterteilt, welche untereinander durch mehrere Tore verbunden sind, verfügen...
Ausstattung
. 5 Rampen (beheizter Bereich)
. 4 ebenerdige Tore
. PV-Anlage
. Trafostation (1.200 kVA)
. umzäunt & umfahrbar
Weitere Informationen
Sonstiges
Es gelten ausschließlich unsere AGB (www.ruhr-real.de/agb). Da der Eigentümer ausschließlich Lager/Logistik, Produktion und Light Industrial als Nutzung wünscht, bitten wir Sie zu berücksichtigen, dass Anfragen zu folgenden Nutzungen nicht bearbeitet werden können: Veranstaltungen/Events...
Anbieter der Immobilie

RUHR REAL GmbH
Holsterhauser Platz 2, 45147 Essen
Online-ID: 2mccf5x
Referenznummer: 3897/E3
Finde Angebote wie dieses
Hier geht es zu unserem Impressum, den Allgemeinen Geschäftsbedingungen, den Hinweisen zum Datenschutz und nutzungsbasierter Online-Werbung.