
ÖRAG Immobilien Vermittlung GmbH
Frau Lara Steinbacher
004 ···
Nr. anzeigenPreise & Kosten
inkl. Betriebskosten
Kaution
5.397,00
Provision für Mieter
provisionsfrei für den Mieter inkl. MwSt.
Warum sehe ich diese Anzeige? – Du siehst diese Anzeige basierend auf Ihrer Navigation auf unserer Website und den Suchkriterien, die du verwendet hast.
Lage
Die Wohnung befindet sich in der Leopoldauer Straße, im Herzen des lebenswerten 21. Bezirks in Wien, Österreich. Diese Lage bietet eine exzellente Balance zwischen urbanem Komfort und naturnahem Wohnen. Der 21. Bezirk, auch bekannt als Floridsdorf, ist bekannt für seine hohe Lebensqualität und zahlreiche Grünflächen...
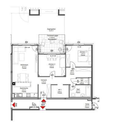
Die Wohnung
Wohnungslage
Erdgeschoss
Bezug
sofort
Wohnanlage
Energie & Heizung
Warum sehe ich diese Anzeige? – Du siehst diese Anzeige basierend auf Ihrer Navigation auf unserer Website und den Suchkriterien, die du verwendet hast.
Heizwärmebedarf (HWB)
27,63 kWh/(m²·a)
Gesamtenergieeffizienz (fGEE)
0,94
Weitere Energiedaten
Energieträger
Fernwärme
Heizungsart
Zentralheizung
Details
Objektbeschreibung
Kurzbeschreibung
Zur Vermietung gelangt eine großzügig geschnittene 3-Zimmer Wohnung mit exzellentem Grundriss im Erdgeschoss mit schöner Terrassen und Gartenfläche.
Das gepflegte Neubauwohnhaus wurde 2014 errichtet und verfügt über einen Aufzug.
Die Wohnung wurde mit einer komplett neuen Küche ausgestattet...
Ausstattung
- Keller
- Spielplatz
- Aufzug
- Garage im Haus
- nagelneue Küche
- Außenjalousien
- Echtholzparkett
- Garten
- Terrasse
Preisinformation
Nettokaltmiete: 1.309,85 EUR
Weitere Informationen
Sonstiges
Wir sind eine Tochtergesellschaft der ÖRAG-Österreichische Realitäten AG, Wien, genannt ÖRAG, und es besteht daher unter Umständen ein sonstiges wirtschaftliches Naheverhältnis im Sinne des Maklergesetzes zur ÖRAG und ihren anderen Tochtergesellschaften in Österreich. Das Naheverhältnis zur ÖRAG ergibt sich zB...
Anbieter der Immobilie
Online-ID: 2mcfh5q
Referenznummer: 109258309
Finde Angebote wie dieses
Hier geht es zu unserem Impressum, den Allgemeinen Geschäftsbedingungen, den Hinweisen zum Datenschutz und nutzungsbasierter Online-Werbung.