
Trummer Immobilien GmbH & Co. KG
Herr Roland Trummer
094 ···
Nr. anzeigenPreise & Kosten
Provision für Käufer
Ortsübliche Provision vom Käufer/Mieter nur im Erfolgsfalle
Lage
Regenstauf
Das Renditeobjekt
Baujahr
2014
Bezug
sofort
Energie & Heizung
Warum sehe ich diese Anzeige? – Du siehst diese Anzeige basierend auf Ihrer Navigation auf unserer Website und den Suchkriterien, die du verwendet hast.
Weitere Energiedaten
Energieträger
Gas
Details
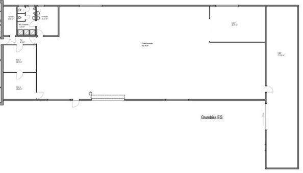
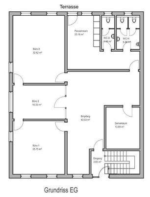
Objektbeschreibung
Kurzbeschreibung
Gerne stehen wir für eine Besichtigung zur Verfügung.
Objekt
In Regenstauf bieten wir ein modernes und verkehrsgünstig gelegenes Gewerbeanwesen zum Verkauf und Vermietung an. Über die nahe Autobahn A 93 und Bundesstraße B 15 ist eine hervorragende Anbindung gegeben. Eine Bushaltestelle befindet...
Ausstattung
Lage: Regenstauf
Kaufpreis: EUR 1.200.000,-
Fläche: ca. 1.016 m²
Grundstück: ca. 2.685 m²
Zimmeranzahl: 13
Baujahr: 2014
letzte Modernisierung: 2024
Geschoss(e): EG + OG
Bezug: sofort
Stellplatzanzahl: 20
Stellplatzpreis: EUR 0,-
Kranbahn: ja
Kran Traglast: 3.200 kg
Fußweg...
Weitere Informationen
Sonstiges
Um eine schnelle Bearbeitung zu gewähren benötigen wir Ihre Telefonnummer sowie Ihre komplette Adresse.
Stichworte
Lagerfläche: 1.016,00 m², Nutzfläche: 1.016,00 m², Gesamtfläche: 2.685,00 m², Bundesland: Bayern, modernisiert: 2024, Distanz zur Autobahn: 1, Distanz zum Bus: .4, Distanz zum...
Anbieter der Immobilie

Trummer Immobilien GmbH & Co. KG
Online-ID: 2mcft5j
Referenznummer: ZIB 3871VB
Finde Angebote wie dieses
Hier geht es zu unserem Impressum, den Allgemeinen Geschäftsbedingungen, den Hinweisen zum Datenschutz und nutzungsbasierter Online-Werbung.