

Claudia Gülzow Immobilien
Frau Claudia Gülzow
004 ···
Nr. anzeigenPreise & Kosten
Verhandlungsbasis
Provision für Käufer
3,57 % Courtage inkl. Mwst.
Das Haus
Kategorie
Doppelhaushälfte
Baujahr
2025
Bezug
sofort
Derzeitige Nutzung
frei
Energie & Heizung
Warum sehe ich diese Anzeige? – Du siehst diese Anzeige basierend auf Ihrer Navigation auf unserer Website und den Suchkriterien, die du verwendet hast.
Energieausweistyp
Bedarfsausweis
Gebäudetyp
Wohngebäude
Baujahr laut Energieausweis
2025
Wesentliche Energieträger
Wärmepumpe
Effizienzklasse
B
Endenergiebedarf
55,00 kWh/(m²·a)
Weitere Energiedaten
Haustyp
KfW 55
Heizungsart
Luft-/Wasser-Wärmepumpe
Details
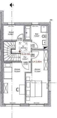
Objektbeschreibung
wirklich traumhafte, moderne Doppelhaushälfte mit kleinem Garten - in top Lage - Nähe Frohmestrasse - alles neu - wunderschöne und gepflegte Wohnanlage mit absoluter top Ausstattung - kurz vor der Fertigstellung - mit Garten
Innen absolut hochwertig erstellt und ausgestattet - im Erdgeschoss befindet sich die schöne...
Weitere Informationen
Auskünfte zum Objekt
Bitte haben Sie Verständnis dafür, dass wir gegenüber den Eigentümern dieser Immobilie vertraglich verpflichtet sind, einen lückenlosen Nachweis in Bezug auf die Weitergabe der Objektinformationen zu erbringen.
WICHTIG: Telefonische Erstauskünfte zum jeweiligen Verkaufsobjekt werden aus o.g...
Anbieter der Immobilie

Online-ID: 2mcfu5t
Finde Angebote wie dieses
Hier geht es zu unserem Impressum, den Allgemeinen Geschäftsbedingungen, den Hinweisen zum Datenschutz und nutzungsbasierter Online-Werbung.