
Volksbank Zwickau eG
- -
037 ···
Nr. anzeigenPreise & Kosten
Provision für Käufer
3,570 % inkl. MwSt.
Lage
Das Haus liegt in einer sehr begehrten Wohngegend in Zwickau - Oberhohndorf. Hier genießen Sie die Ruhe eines klassischen Wohngebietes, haben aber dennoch eine sehr gute Anbindung an die Innenstadt sowie an die A72. Einkaufsmöglichkeiten, Bäcker, Unterhaltungszentren und andere Einrichtungen des täglichen Bedarfs erreichen...
Das Haus
Kategorie
Einfamilienhaus
Baujahr
1983
Energie & Heizung
Warum sehe ich diese Anzeige? – Du siehst diese Anzeige basierend auf Ihrer Navigation auf unserer Website und den Suchkriterien, die du verwendet hast.
Energieausweistyp
Verbrauchsausweis
Gebäudetyp
Wohngebäude
Wesentliche Energieträger
Erdgas
Gültigkeit
12.06.2025 bis 11.06.2035
Effizienzklasse
E
Endenergieverbrauch
137,94 kWh/(m²·a) - Warmwasser enthalten
Weitere Energiedaten
Energieträger
Gas
Details
Objektbeschreibung
Sie träumen von den eigenen vier Wänden?
Dieses tolle und großzügige Einfamilienhaus bietet Ihnen die perfekte Kombination aus Komfort, Natur und Ruhe.
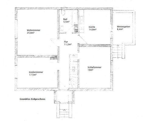
Mit einer Wohnfläche von 151m², 5 Zimmern, einem Bad mit ebenerdiger Dusche, ein WC im 1.OG und vielen Abstellmöglichkeiten bietet es Ihnen ausreichend Platz für die...
Preisinformation
5 Stellplätze
1 Garagenstellplatz
Weitere Informationen
Sonstiges
Alle hier gemachten Beschreibungen beruhen auf Angaben und Unterlagen unseres Kunden für deren Richtigkeit wir keine Haftung übernehmen. Ein genaues Aufmaß der Wohnfläche wurde nicht gemacht.
Der Energieausweis liegt zur Besichtigung vor.
Bitte beachten Sie die jeweils gültigen Anforderungen gemäß...
Anbieter der Immobilie
Volksbank Zwickau eG
Bahnhofstraße 1 A, 08056 Zwickau
Online-ID: 2mcgb5t
Referenznummer: 0-238
Finde Angebote wie dieses
Hier geht es zu unserem Impressum, den Allgemeinen Geschäftsbedingungen, den Hinweisen zum Datenschutz und nutzungsbasierter Online-Werbung.