
Niedersächsisches Landesamt für Bau u. Liegenschaften, BL2/LFN
Herr Oliver Haas
+49 ···
Nr. anzeigenPreise & Kosten
Provision für Käufer
provisionsfrei
Lage
Die Liegenschaft befindet sich im Ortskern der ca. 30.000 Einwohner zählenden niedersächsischen Stadt Northeim. Die Entfernung zum Stadtzentrum beträgt ca. 300 Meter, zum Bahnhof ca. 1,5 Kilometer und zur nächstgelegenen größeren Stadt Göttingen ca. 20 Kilometer. Geschäfte des täglichen Bedarfs, Schulen und Ärzte befinden...
Das Haus
Kategorie
Einfamilienhaus
Baujahr
1900
Energie & Heizung
Warum sehe ich diese Anzeige? – Du siehst diese Anzeige basierend auf Ihrer Navigation auf unserer Website und den Suchkriterien, die du verwendet hast.
Energieausweistyp
Verbrauchsausweis
Gebäudetyp
Wohngebäude
Baujahr laut Energieausweis
1900
Wesentliche Energieträger
Gas
Gültigkeit
20.10.2025 bis 19.10.2035
Endenergieverbrauch
115,00 kWh/(m²·a)
Weitere Energiedaten
Energieträger
Gas
Details
Objektbeschreibung
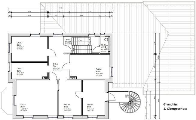
Bei dem Liegenschaftsangebot handelt es sich um das im Grundbuch von Northeim Blatt 4981 im Bestandsverzeichnis unter der laufenden Nummer 2 verzeichnete und mit einem freistehenden, unterkellerten, zweigeschossigen Verwaltungs- und Geschäftshaus samt Anbau bebaute Grundstück der Gemarkung Northeim, Flur 6, Flurstück 288/2...
Preisinformation
10 Stellplätze
1 Garagenstellplatz
Weitere Informationen
Sonstiges
Feststellungen über den Zustand des Gebäudes beruhen lediglich auf Inaugenscheinnahme; eingehende Untersuchungen auf versteckte Baumängel und Bauschäden, auf Verwendung gesundheitsschädigender Baumaterialien sowie eingehende Bodenuntersuchungen auf Kontaminationen wurden nicht durchgeführt.
Das Vorliegen...
Anbieter der Immobilie
Niedersächsisches Landesamt für Bau u. Liegenschaften, BL2/LFN
Waterloostraße 4, 30169 Hannover
Online-ID: 2mcj554
Referenznummer: 19758#cYnqO9
Finde Angebote wie dieses
Hier geht es zu unserem Impressum, den Allgemeinen Geschäftsbedingungen, den Hinweisen zum Datenschutz und nutzungsbasierter Online-Werbung.