

J&P Immobilienmakler GmbH
Frau Kathrin Fercher
+43 ···
Nr. anzeigenPreise & Kosten
inkl. Betriebskosten
Kaution
72.876,24 6 MM
Provision für Mieter
3 BMM
Warum sehe ich diese Anzeige? – Du siehst diese Anzeige basierend auf Ihrer Navigation auf unserer Website und den Suchkriterien, die du verwendet hast.
Büro-/Praxisfläche
Kategorie
Bürofläche
Bezug
sofort
Geschoss
3. Geschoss
Energie & Heizung
Warum sehe ich diese Anzeige? – Du siehst diese Anzeige basierend auf Ihrer Navigation auf unserer Website und den Suchkriterien, die du verwendet hast.
Heizwärmebedarf (HWB)
54,80 kWh/(m²·a)
Gesamtenergieeffizienz (fGEE)
1,12
Weitere Energiedaten
Energieträger
Fernwärme
Heizungsart
Zentralheizung
Details
Objektbeschreibung
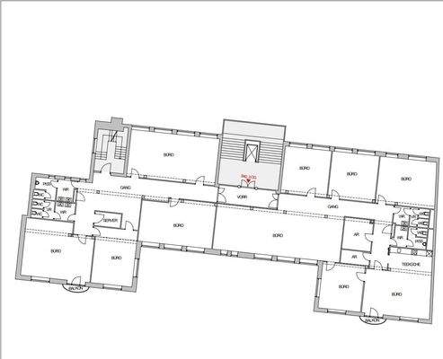
Flächen- und Kostenübersicht
Geschoß: 3.OG./ B40
Nutzfläche: ca. 561,07 m² + 3 m² Balkone
Nettomiete/m²: € 15,00
BK netto /m²: € 2,33
HK netto/m²: € 0,71
Allgemeine Objektbeschreibung
Sichern Sie sich einen begehrten Geschäftsstandort in einem der architektonisch bedeutendsten Gebäude...
Preisinformation
Nettokaltmiete: 8.416,05 EUR
Weitere Informationen
Stichworte
Anzahl der separaten WCs: 6, Anzahl Balkone: 2, Wohnungsnr.: 3 B40
Anbieter der Immobilie
J&P Immobilienmakler GmbH
Lehargasse 7, 1060 WIEN

Online-ID: 2mcj55n
Referenznummer: 101/12917
Finde Angebote wie dieses
Hier geht es zu unserem Impressum, den Allgemeinen Geschäftsbedingungen, den Hinweisen zum Datenschutz und nutzungsbasierter Online-Werbung.